Waterside RetreatPlan SL-084

SL-084

Plan Details

BASICS

  • 4
  • 4 full
  • 3
  • 0
  • Crawlspace
  • Upper Floor
  • Main Floor
  • 0

SQUARE FOOTAGE

  • 1,074
  • 1,074
  • 328
  • 2,476

DIMENSIONS

  • 65'8" x 26'0"
  • 32'8"

PLATE HEIGHTS

  • 10.0'
  • 9.0'

CONSTRUCTION

  • 2x6
  • Rafter

STYLE / INFLUENCES

  • Southern
  • ,
  • Beach/Coastal

KITCHEN FEATURES

  • Open Layout
  • ,
  • Snack
  • ,
  • Island
  • ,
  • Pantry

PRIMARY BEDROOM FEATURES

  • Walk-in Closet
  • ,
  • Dual Sinks
  • ,
  • Shower
  • ,
  • Outdoor Access
  • ,
  • Spa/Whirlpool

ADDITIONAL FEATURES

  • Porch

DESCRIPTION

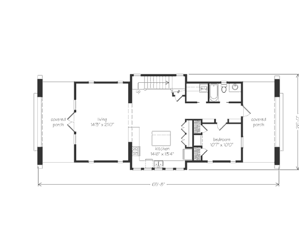
This spacious West Indies inspired retreat celebrates coastal design by incorporating abundant views from large picture windows while flanked by a pair of two story covered porches at each end of the house.

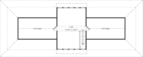
The plan has a clean linear organization providing 4 bedrooms and 4 baths including a large master suite adjacent to a private upstairs covered porch. Adding to the charm is a 3rd story loft with window walls looking out of either side of the space along with ample storage space on each end of the loft. Complete with a open kitchen plan and large entry level living space this coastal retreat provides all the ingredients for spacious casual living.
TALK to a SPECIALIST!
PLAN PRICING:
Downloadable PDF of full-size drawings.
Best for construction and customization.
Five full sets of construction drawings, copyright protected.
(Floor plans are reversed from plan as shown. All text and dimensions read backwards.)
Recommended for construction bids or pricing. Stamped "Not For Construction".
Purchase price can be applied toward an upgrade to the Construction or PDF Plan set for the same plan.
HOW TO PERSONALIZE YOUR PLAN:
  • 1
    SELECT your favorite plan.
  • 2
    SUBMIT your
    list of
    requirements.
  • 3
    CREATE a list of changes.
Get Started!