Hanover CottagePlan SL-1111

SL-1111

Plan Details

BASICS

  • 2
  • 2 full, 1 half
  • 2
  • 0
  • Crawlspace
  • Upper Floor
  • 1

SQUARE FOOTAGE

  • 591
  • 591
  • 1,182

DIMENSIONS

  • 25'0" x 38'0"
  • 29'0"

PLATE HEIGHTS

  • 10.0'
  • 9.0'

CONSTRUCTION

  • 2x4
  • Gable

STYLE / INFLUENCES

  • Craftsman
  • ,
  • Country
  • ,
  • Cottage

KITCHEN FEATURES

  • Open Layout
  • ,
  • Pantry

PRIMARY BEDROOM FEATURES

  • Single Sink
  • ,
  • Tub

ADDITIONAL FEATURES

  • Fireplace
  • ,
  • Porch

DESCRIPTION

This plan draws from the mountain retreats of the Southern mountains; places like Monteagle in Tennessee, and Black Mountain and Highlands, North Carolina. This compact plan is well suited for either a second home getaway or a first home for a single, couple or young family.

The broad front porch is a great place for watching the mountains or chatting with your neighbors.

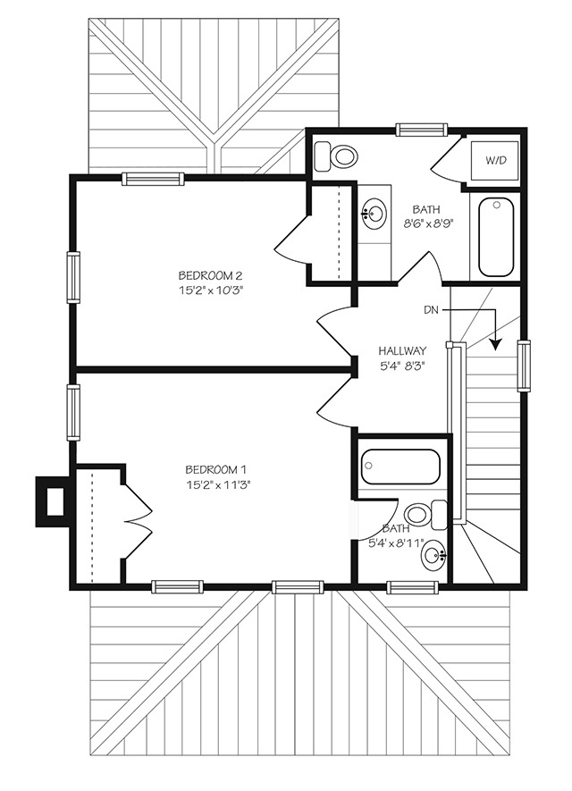
The first floor is both open and cozy. The fireplace provides a focus for the living room, while the kitchen has just enough privacy without being closed off. Two bedrooms and two baths occupy the upper level.

Design by Frank G. Greene, AIA
TALK to a SPECIALIST!
PLAN PRICING:
Downloadable PDF of full-size drawings.
Best for construction and customization.
Five full sets of construction drawings, copyright protected.
(Floor plans are reversed from plan as shown. All text and dimensions read backwards.)
Recommended for construction bids or pricing. Stamped "Not For Construction".
Purchase price can be applied toward an upgrade to the Construction or PDF Plan set for the same plan.
HOW TO PERSONALIZE YOUR PLAN:
  • 1
    SELECT your favorite plan.
  • 2
    SUBMIT your
    list of
    requirements.
  • 3
    CREATE a list of changes.
Get Started!