ParkviewPlan SL-1130

SL-1130

Plan Details

BASICS

  • 3
  • 4 full, 1 half
  • 3
  • 2
  • Crawlspace
  • Main Floor
  • Main Floor
  • 2

SQUARE FOOTAGE

  • 1,855
  • 1,239
  • 505
  • 3,599
  • 621

DIMENSIONS

  • 54'0" x 90'0"
  • 35'0"

PLATE HEIGHTS

  • 10.4'
  • 9.5'

CONSTRUCTION

  • 2x6
  • Gable

STYLE / INFLUENCES

  • Country

KITCHEN FEATURES

  • Open Layout
  • ,
  • Snack
  • ,
  • Island

PRIMARY BEDROOM FEATURES

  • Walk-in Closet
  • ,
  • Dual Sinks
  • ,
  • Shower
  • ,
  • Private Toilet
  • ,
  • Spa/Whirlpool
  • ,
  • Patio/Terrace

ADDITIONAL FEATURES

  • Porch
  • ,
  • Fireplace
  • ,
  • Courtyard
  • ,
  • Patio/Terrace

DESCRIPTION

This brick house was inspired by the gracious homes of the 1920s. The 12' deep wraparound porch is an ideal place to sit and enjoy the outdoor fireplace.

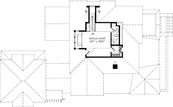
The interior features an open plan with large windows that flood the house with light. The first floor master suite is situated at the rear of the house for privacy. The third floor bonus room could function as a playroom, media room, or an extra bedroom.

The attached two-car garage has a second story bonus room that has the potential for an office, guestroom or apartment.

An exclusive design for Southern Living by Historical Concepts, LLC and offered by Our Town Plans, LLC
TALK to a SPECIALIST!
PLAN PRICING:
Downloadable PDF of full-size drawings.
Best for construction and customization.
Five full sets of construction drawings, copyright protected.
(Floor plans are reversed from plan as shown. All text and dimensions read backwards.)
Recommended for construction bids or pricing. Stamped "Not For Construction".
Purchase price can be applied toward an upgrade to the Construction or PDF Plan set for the same plan.
Downloadable letter-size PDF with floor plans, exterior elevations, and color photography (if available).
HOW TO PERSONALIZE YOUR PLAN:
  • 1
    SELECT your favorite plan.
  • 2
    SUBMIT your
    list of
    requirements.
  • 3
    CREATE a list of changes.
Get Started!