Kinsley PlacePlan SL-1131

SL-1131

Plan Details

BASICS

  • 4
  • 5 full, 1 half
  • 2
  • 3
  • Slab
  • Main Floor
  • Main Floor
  • 0

SQUARE FOOTAGE

  • 2,692
  • 818
  • 3,510
  • 987

DIMENSIONS

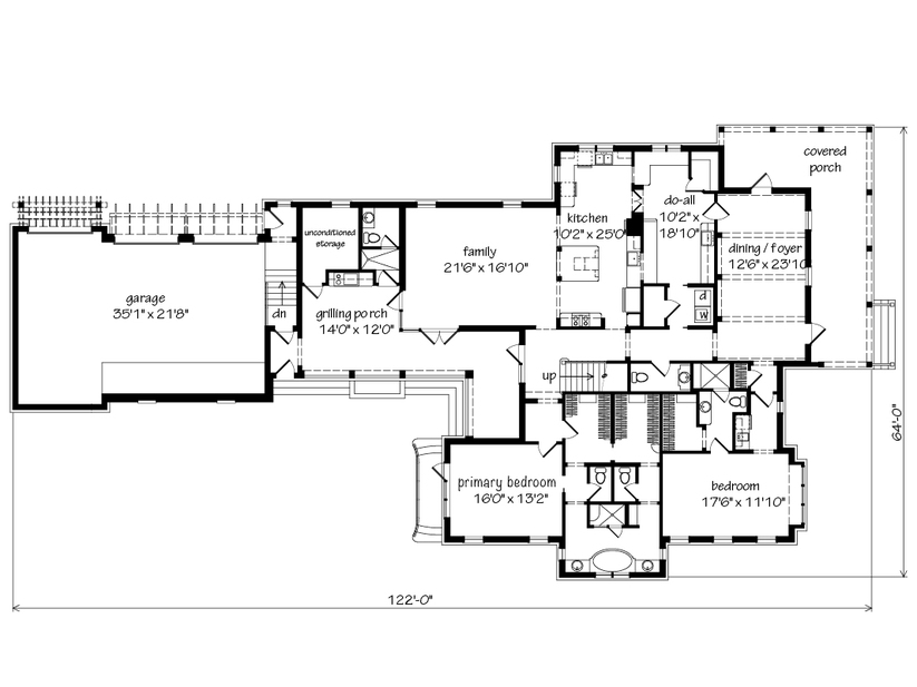
  • 64'0" x 122'0"
  • 39'0"

PLATE HEIGHTS

  • 10.0'
  • 9.0'

CONSTRUCTION

  • Concrete Block
  • Gable

STYLE / INFLUENCES

  • Country
  • ,
  • Farmhouse
  • ,
  • Victorian
  • ,
  • Gothic Revival

KITCHEN FEATURES

  • Snack
  • ,
  • Pantry
  • ,
  • Butler's Pantry

PRIMARY BEDROOM FEATURES

  • Walk-in Closet
  • ,
  • Dual Sinks
  • ,
  • Shower
  • ,
  • Private Toilet
  • ,
  • Spa/Whirlpool
  • ,
  • Patio/Terrace

ADDITIONAL FEATURES

  • Porch

DESCRIPTION

With a Victorian influence, Kinsley Place draws from Florida vernacular architecture with a hint of the modest wood-frame Cracker-style homesteads most commonly found in rural areas of the state. However, this design is a combination of lap siding and board-and-batten siding as it offers interesting twists on the traditional Florida look. Architects Carson Looney and Mark Jones, of Looney Ricks Kiss Architects in Memphis, Tennessee, masterfully meld form and function. The house boasts stylish, innovative spaces for every member of the family. With over 3,500 square feet of heated space, Kinsley Place is all about comfort and livability.

Note that the version in the photos with vaulted ceilings, exposed timbers, and large kitchen island was built with a significantly modified floor plan. The construction drawings available for purchase will match the floor plans and black-and-white rendering shown.
TALK to a SPECIALIST!
PLAN PRICING:
Electronic drawing files of the plan.
This, or a PDF Plan set, is required for customization.
Downloadable PDF of full-size drawings.
Best for construction and customization.
Five full sets of construction drawings, copyright protected.
(Floor plans are reversed from plan as shown. All text and dimensions read backwards.)
Recommended for construction bids or pricing. Stamped "Not For Construction".
Purchase price can be applied toward an upgrade to the Construction or PDF Plan set for the same plan.
HOW TO PERSONALIZE YOUR PLAN:
  • 1
    SELECT your favorite plan.
  • 2
    SUBMIT your
    list of
    requirements.
  • 3
    CREATE a list of changes.
Get Started!