Planter's RetreatPlan SL-1260

SL-1260

Plan Details

BASICS

  • 4
  • 3 full, 1 half
  • 2
  • D3
  • Crawlspace
  • Upper Floor
  • Upper Floor
  • 2

SQUARE FOOTAGE

  • 1,930
  • 1,391
  • 3,321
  • 715

DIMENSIONS

  • 79'0" x 24'0"
  • 29'0"

PLATE HEIGHTS

  • 9.1'
  • 9.5'

CONSTRUCTION

  • 2x6
  • Gable

STYLE / INFLUENCES

  • Southern
  • ,
  • Farmhouse

KITCHEN FEATURES

  • Open Layout
  • ,
  • Snack
  • ,
  • Island
  • ,
  • Pantry

PRIMARY BEDROOM FEATURES

  • Walk-in Closet
  • ,
  • Dual Sinks
  • ,
  • Shower
  • ,
  • Tub

ADDITIONAL FEATURES

  • Porch
  • ,
  • Fireplace

DESCRIPTION

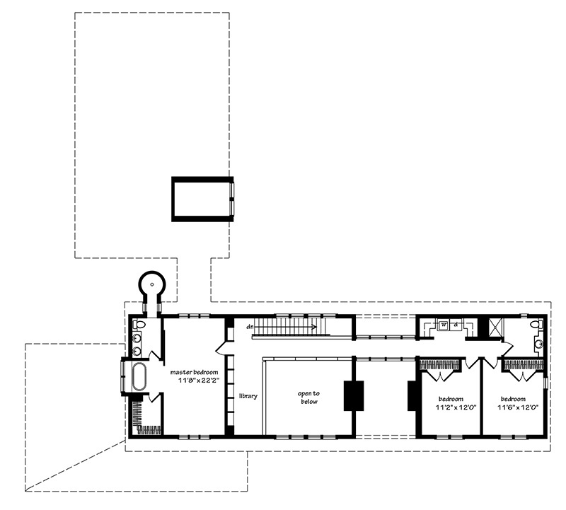
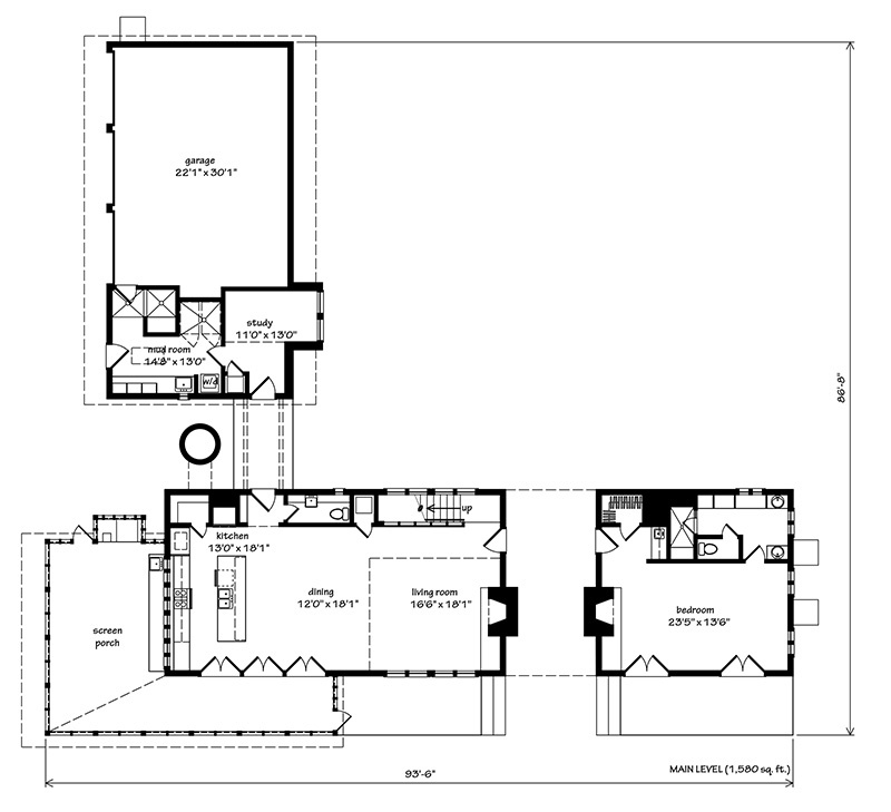
Planter’s Retreat is based on the “dogtrot”—a home divided in two with a breezeway in-between. This update of a traditional farmhouse has a guest bedroom and bath on the main level, and open-plan living, dining, and kitchen areas. Upstairs are three bedrooms, two baths, and a library.

Design by Eskew+Dumez+Ripple Architects
TALK to a SPECIALIST!
PLAN PRICING:
Downloadable PDF of full-size drawings.
Best for construction and customization.
Five full sets of construction drawings, copyright protected.
(Floor plans are reversed from plan as shown. All text and dimensions read backwards.)
Recommended for construction bids or pricing. Stamped "Not For Construction".
Purchase price can be applied toward an upgrade to the Construction or PDF Plan set for the same plan.
HOW TO PERSONALIZE YOUR PLAN:
  • 1
    SELECT your favorite plan.
  • 2
    SUBMIT your
    list of
    requirements.
  • 3
    CREATE a list of changes.
Get Started!