2006 Cooking Light Fit HousePlan SL-1285

SL-1285

Plan Details

BASICS

  • 4
  • 4 full, 1 half
  • 2
  • D2
  • Walkout Basement
  • Main Floor
  • Main Floor
  • 2

SQUARE FOOTAGE

  • 2,200
  • 1,188
  • 3,388
  • 0

DIMENSIONS

  • 57'0" x 45'0"
  • 0'0"

PLATE HEIGHTS

  • 10.0'
  • 9.0'

CONSTRUCTION

  • 2x4
  • Hip

STYLE / INFLUENCES

  • Country
  • ,
  • Southern

KITCHEN FEATURES

  • Open Layout
  • ,
  • Snack
  • ,
  • Island
  • ,
  • Pantry

PRIMARY BEDROOM FEATURES

  • Walk-in Closet
  • ,
  • Dual Sinks
  • ,
  • Shower
  • ,
  • Outdoor Access
  • ,
  • Private Toilet
  • ,
  • Spa/Whirlpool

ADDITIONAL FEATURES

  • Porch
  • ,
  • Fireplace

DESCRIPTION

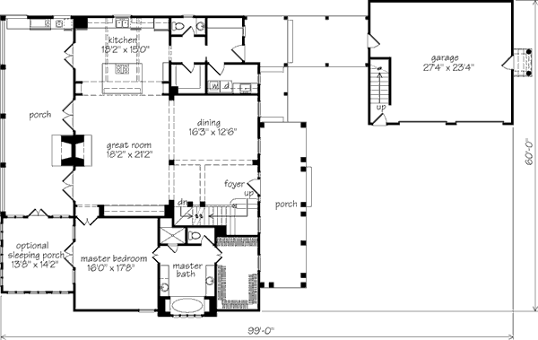
The incredible 2006 Cooking Light Fit House is an exclusive Southern Living Design by John Tee. One of the design's true signatures is how it's able to smartly connect the outdoor and indoor areas. In front you'll find a charming columned porch to draw guests inside, while in back the enormous porch is ideal for summer entertaining--it features a outdoor kitchen and a fireplace and four sets of beautiful French doors that provide access to the kitchen, the Great Room and the master bedroom.

Indoor events will naturally gravitate to the spacious Great Room, which boasts its own fireplace and is just steps away from the kitchen. A great cooktop island and a big walk-in pantry ensure that the kitchen will appeal to even the most discriminating gourmet. The master bedroom offers privacy and practicality and that walk-in closet you've dreamt of your whole life! Three additional bedrooms are on the upper level, as well as a studio that can serve as another bedroom in a pinch. A bonus room above the garage offers a flexible space that adds 362 sq. ft. and can suit a variety of needs.
TALK to a SPECIALIST!
PLAN PRICING:
Downloadable PDF of full-size drawings.
Best for construction and customization.
Five full sets of construction drawings, copyright protected.
(Floor plans are reversed from plan as shown. All text and dimensions read backwards.)
Recommended for construction bids or pricing. Stamped "Not For Construction".
Purchase price can be applied toward an upgrade to the Construction or PDF Plan set for the same plan.
Downloadable letter-size PDF with floor plans, exterior elevations, and color photography (if available).
HOW TO PERSONALIZE YOUR PLAN:
  • 1
    SELECT your favorite plan.
  • 2
    SUBMIT your
    list of
    requirements.
  • 3
    CREATE a list of changes.
Get Started!