Comfortable Country FarmhousePlan SL-135

SL-135

Plan Details

BASICS

  • 3
  • 3 full, 1 half
  • 2
  • D2
  • Walkout Basement
  • Main Floor
  • Main Floor
  • 1

SQUARE FOOTAGE

  • 1,598
  • 756
  • 0
  • 2,354
  • 492

DIMENSIONS

  • 62'0" x 35'0"
  • 31'0"

PLATE HEIGHTS

  • 9.0'
  • 8.0'

CONSTRUCTION

  • 2x4
  • Gable

STYLE / INFLUENCES

  • Country
  • ,
  • Southern

KITCHEN FEATURES

  • Nook
  • ,
  • Island

PRIMARY BEDROOM FEATURES

  • Dual Access
  • ,
  • Walk-in Closet
  • ,
  • Porch
  • ,
  • Dual Sinks
  • ,
  • Shower
  • ,
  • Tub
  • ,
  • Deck

ADDITIONAL FEATURES

  • Porch
  • ,
  • Fireplace
  • ,
  • Deck

DESCRIPTION

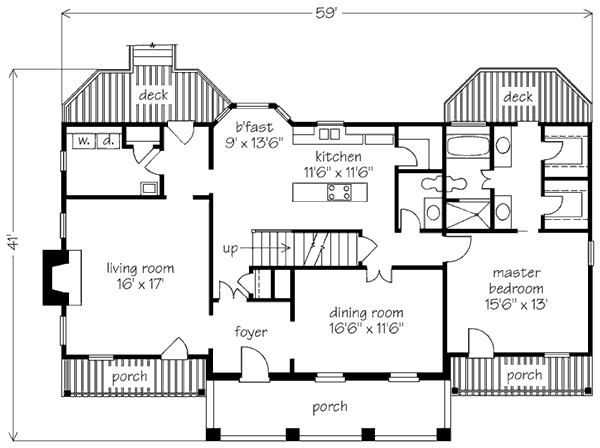
With shady porches and sun-catching decks, our Country Farmhouse plan captures what a good Southern house is all about-comfort. One-story wings flanking the center and porches with old-fashioned carpenter trim lend a rambling country flavor. At the same time, overall dimensions are relatively compact, ensuring construction cost efficiency.

To suit budget and family size, this house may also be built in stages. Initially, a two-bedroom plan offers master bedroom and nursery or child's bedroom upstairs, with kitchen, breakfast, and living area below. The master bedroom and living room wings may be added later.
TALK to a SPECIALIST!
PLAN PRICING:
Downloadable PDF of full-size drawings.
Best for construction and customization.
Five full sets of construction drawings, copyright protected.
(Floor plans are reversed from plan as shown. All text and dimensions read backwards.)
Recommended for construction bids or pricing. Stamped "Not For Construction".
Purchase price can be applied toward an upgrade to the Construction or PDF Plan set for the same plan.
HOW TO PERSONALIZE YOUR PLAN:
  • 1
    SELECT your favorite plan.
  • 2
    SUBMIT your
    list of
    requirements.
  • 3
    CREATE a list of changes.
Get Started!