LeBatrie CourtPlan SL-1372

SL-1372

Plan Details

BASICS

  • 4
  • 4 full, 1 half
  • 3
  • 2
  • Crawlspace
  • Upper Floor
  • Main Floor
  • 1

SQUARE FOOTAGE

  • 1,622
  • 1,338
  • 790
  • 3,750
  • 650

DIMENSIONS

  • 88'0" x 64'0"
  • 38'0"

PLATE HEIGHTS

  • 10.0'
  • 10.0'

CONSTRUCTION

  • 2x6
  • Gable

STYLE / INFLUENCES

  • Country
  • ,
  • Southern

KITCHEN FEATURES

  • Eat-in

PRIMARY BEDROOM FEATURES

  • Dual Sinks
  • ,
  • Outdoor Access
  • ,
  • Shower
  • ,
  • Tub
  • ,
  • Walk-in Closet

ADDITIONAL FEATURES

  • Fireplace
  • ,
  • Porch

DESCRIPTION

Marrying the accent of Old New Orleans architecture with updates for today's modern lifestyle, Ken Tate's Le Batrie Court is a plan ideal for the consummate entertainer or anyone who enjoys living the good life simply.

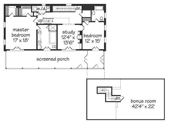
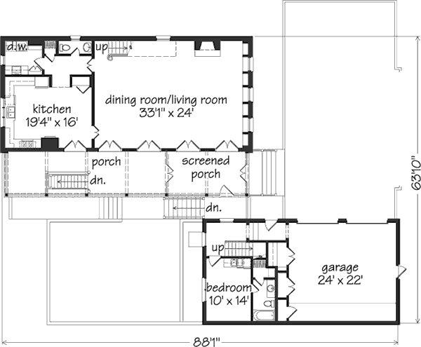
With five bedrooms and 4 bathrooms, the home encompasses 3,750 square feet of sophisticated living space. On the first floor, a spacious, eat-in kitchen flows into the open living and dining room. Up the staircase await the master suite, a private study and another bedroom that all access the screened porch. The third floor holds two more bedrooms to accommodate friends and family.

French Colonial architectural influences are present in the house's steeply pitched hip roofs, arched dormers and parged brick. Stacked side porches and multiple pairs of French doors capture the best of the outdoors while sheltering inhabitants from the elements. Resembling a quaint kitchen house, the detached, combination garage and guest quarters help define the front and rear courtyards.
TALK to a SPECIALIST!
PLAN PRICING:
Downloadable PDF of full-size drawings.
Best for construction and customization.
Five full sets of construction drawings, copyright protected.
(Floor plans are reversed from plan as shown. All text and dimensions read backwards.)
Recommended for construction bids or pricing. Stamped "Not For Construction".
Purchase price can be applied toward an upgrade to the Construction or PDF Plan set for the same plan.
Downloadable letter-size PDF with floor plans, exterior elevations, and color photography (if available).
HOW TO PERSONALIZE YOUR PLAN:
  • 1
    SELECT your favorite plan.
  • 2
    SUBMIT your
    list of
    requirements.
  • 3
    CREATE a list of changes.
Get Started!