Kousa CreekPlan SL-1406

SL-1406

Plan Details

BASICS

  • 4
  • 4 full
  • 2
  • 2 Stall Attached
  • Walkout Basement
  • Main Floor
  • Main Floor
  • 2

SQUARE FOOTAGE

  • 2,425
  • 1,015
  • 1,208
  • 4,648
  • 695

DIMENSIONS

  • 87'0" x 76'0"
  • 29'0"

PLATE HEIGHTS

  • 9.0'
  • 9.0'

CONSTRUCTION

  • 2x4
  • Gable

STYLE / INFLUENCES

  • Southern
  • ,
  • Greek Revival

KITCHEN FEATURES

  • Island
  • ,
  • Pantry

PRIMARY BEDROOM FEATURES

  • Double Doors
  • ,
  • Walk-in Closet
  • ,
  • Dual Sinks
  • ,
  • Shower
  • ,
  • Private Toilet

ADDITIONAL FEATURES

  • Porch
  • ,
  • Fireplace
  • ,
  • Deck

DESCRIPTION

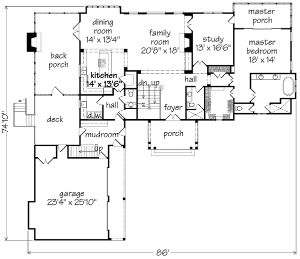
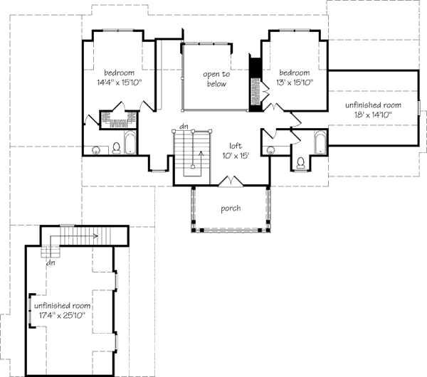
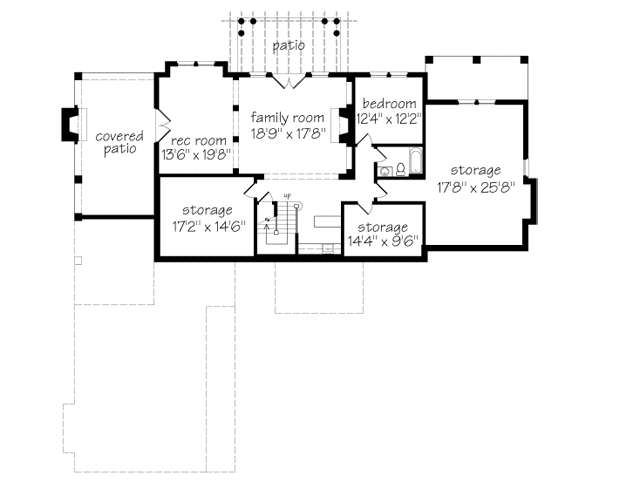
August in the South means Idea Houses for Southern Living. To celebrate this annual event, Kousa Creek, our 2007 Georgia Idea House designed by John Tee of Atlanta, is the perfect offering. With elegant columns, the stacked front porch shelters visitors and provides a covered seating area on the second level. An oculus window on the front of the garage, multiple dormers, and a seamless mixture of stone, lap siding and shingles lend casual, inviting style to the house?s exterior. Just under 3,500 square feet, it features four bedrooms, four bathrooms and plenty of graceful entertaining space.

To see a video tour of this home, please click here.
TALK to a SPECIALIST!
PLAN PRICING:
Electronic drawing files of the plan.
This, or a PDF Plan set, is required for customization.
Downloadable PDF of full-size drawings.
Best for construction and customization.
Five full sets of construction drawings, copyright protected.
(Floor plans are reversed from plan as shown. All text and dimensions read backwards.)
Recommended for construction bids or pricing. Stamped "Not For Construction".
Purchase price can be applied toward an upgrade to the Construction or PDF Plan set for the same plan.
Downloadable letter-size PDF with floor plans, exterior elevations, and color photography (if available).
HOW TO PERSONALIZE YOUR PLAN:
  • 1
    SELECT your favorite plan.
  • 2
    SUBMIT your
    list of
    requirements.
  • 3
    CREATE a list of changes.
Get Started!