Cold Spring LanePlan SL-1416

SL-1416

Plan Details

BASICS

  • 4
  • 4 full, 1 half
  • 2
  • 2
  • Slab
  • Main Floor
  • Main Floor
  • 0

SQUARE FOOTAGE

  • 2,320
  • 971
  • 3,291
  • 529

DIMENSIONS

  • 58'0" x 101'0"
  • 28'0"

PLATE HEIGHTS

  • 0.0'
  • 0.0'

CONSTRUCTION

  • 2x4
  • Gable

STYLE / INFLUENCES

  • Southern
  • ,
  • Cottage
  • ,
  • New England
  • ,
  • Colonial

KITCHEN FEATURES

  • Nook

PRIMARY BEDROOM FEATURES

  • Walk-in Closet
  • ,
  • Dual Sinks
  • ,
  • Shower
  • ,
  • Private Toilet

ADDITIONAL FEATURES

  • Porch

DESCRIPTION

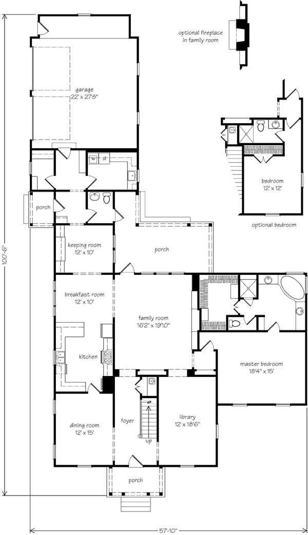
Designed by Todd Wilson, Cold Spring Lane is full of details that simplify busy lives. From the mail drop-off spot next to the rear "Friend's Entry" to the Keeping Room perfect for storing heirloom china, you'll marvel at the thoughtful design touches throughout this plan. With four bedrooms and four and a half bathrooms, the house totals 3,291 square feet. A fifth bedroom and bathroom are optional additions.

A divided-light transom above the front door allows sunlight to stream into the entryway. The library and dining room flank the foyer, and a bar sits down the hall on the way to the Great Room. A private master suite has everything a couple could want, including a large, walk-in closet and a corner soaking tub with views out of two windows. Two of the three upstairs bedrooms feature dormers with window seats that overlook the front yard.
TALK to a SPECIALIST!
PLAN PRICING:
Downloadable PDF of full-size drawings.
Best for construction and customization.
Five full sets of construction drawings, copyright protected.
(Floor plans are reversed from plan as shown. All text and dimensions read backwards.)
Recommended for construction bids or pricing. Stamped "Not For Construction".
Purchase price can be applied toward an upgrade to the Construction or PDF Plan set for the same plan.
Downloadable letter-size PDF with floor plans, exterior elevations, and color photography (if available).
HOW TO PERSONALIZE YOUR PLAN:
  • 1
    SELECT your favorite plan.
  • 2
    SUBMIT your
    list of
    requirements.
  • 3
    CREATE a list of changes.
Get Started!