The Potter's HousePlan SL-1484

SL-1484

Plan Details

BASICS

  • 3
  • 3 full, 1 half
  • 2
  • 0
  • Pier
  • Main Floor
  • Main Floor
  • 1

SQUARE FOOTAGE

  • 1,813
  • 691
  • 2,504

DIMENSIONS

  • 50'0" x 67'0"
  • 24'0"

PLATE HEIGHTS

  • 9.0'
  • 10.0'

CONSTRUCTION

  • 2x4
  • Gable

STYLE / INFLUENCES

  • Country
  • ,
  • Southern
  • ,
  • New England
  • ,
  • Colonial
  • ,
  • Farmhouse

KITCHEN FEATURES

  • Nook

PRIMARY BEDROOM FEATURES

  • Walk-in Closet
  • ,
  • Dual Sinks
  • ,
  • Shower
  • ,
  • Tub
  • ,
  • Outdoor Access
  • ,
  • Private Toilet

ADDITIONAL FEATURES

  • Porch
  • ,
  • Fireplace

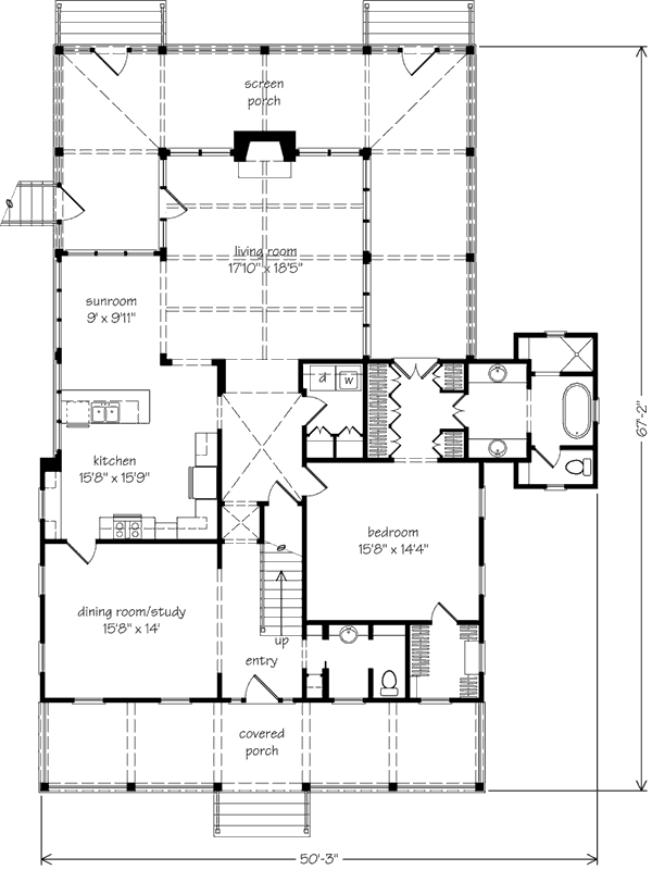
DESCRIPTION

Truly Southern best describes this raised cottage from architect Rick Black. It just says welcome, come on in! For entertaining casual enjoyment and everyday living, step inside to find style and space in only 2,500 square feet. Organized, comfortable spaces and sensible planning are the hallmarks of this design. Ceiling heights are 9-feet on the main level, except in the vaulted living room. Sloping ceilings in upstairs bedrooms add cottage charm and maximize floor space.

There is another version of this house plan available, called The Potter’s House Alternate, plan SL-1479, containing just over 2,300 square feet of living space.

Photo credit – Jon Herron, Habersham Properties
TALK to a SPECIALIST!
PLAN PRICING:
Downloadable PDF of full-size drawings.
Best for construction and customization.
Five full sets of construction drawings, copyright protected.
(Floor plans are reversed from plan as shown. All text and dimensions read backwards.)
Recommended for construction bids or pricing. Stamped "Not For Construction".
Purchase price can be applied toward an upgrade to the Construction or PDF Plan set for the same plan.
Downloadable letter-size PDF with floor plans, exterior elevations, and color photography (if available).
HOW TO PERSONALIZE YOUR PLAN:
  • 1
    SELECT your favorite plan.
  • 2
    SUBMIT your
    list of
    requirements.
  • 3
    CREATE a list of changes.
Get Started!