Heron CourtPlan SL-1498

SL-1498

Plan Details

BASICS

  • 4
  • 3 full
  • 2
  • 2
  • Slab
  • Upper Floor
  • Main Floor
  • 2

SQUARE FOOTAGE

  • 1,355
  • 1,521
  • 2,876
  • 499

DIMENSIONS

  • 42'0" x 94'0"
  • 34'0"

PLATE HEIGHTS

  • 11.0'
  • 10.0'

CONSTRUCTION

  • Unknown

STYLE / INFLUENCES

  • Southern

KITCHEN FEATURES

  • Island

PRIMARY BEDROOM FEATURES

  • Walk-in Closet
  • ,
  • Porch
  • ,
  • Dual Sinks
  • ,
  • Shower
  • ,
  • Tub
  • ,
  • Fireplace
  • ,
  • Private Toilet

ADDITIONAL FEATURES

  • Porch
  • ,
  • Fireplace
  • ,
  • Patio/Terrace

DESCRIPTION

Just the sound of the word “courtyard” conjures up images of a lush, secluded garden tucked out of sight yet only steps from the main house. Heron Court boasts such a shady hideaway.

If your lot is wide, you can position this house plan so that the courtyard is facing to the front. Should your property be long and narrow, the main sector of the house, with its double porches, could face the street. The courtyard and garage could extend deep into the site. Either way, this New Orleans side yard design captures a timeless elegance.

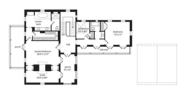
Plans include details for an elevator option shown in the bunk rooms.
TALK to a SPECIALIST!
PLAN PRICING:
Electronic drawing files of the plan.
This, or a PDF Plan set, is required for customization.
Downloadable PDF of full-size drawings.
Best for construction and customization.
Five full sets of construction drawings, copyright protected.
(Floor plans are reversed from plan as shown. All text and dimensions read backwards.)
Recommended for construction bids or pricing. Stamped "Not For Construction".
Purchase price can be applied toward an upgrade to the Construction or PDF Plan set for the same plan.
Downloadable letter-size PDF with floor plans, exterior elevations, and color photography (if available).
HOW TO PERSONALIZE YOUR PLAN:
  • 1
    SELECT your favorite plan.
  • 2
    SUBMIT your
    list of
    requirements.
  • 3
    CREATE a list of changes.
Get Started!