Wind RiverPlan SL-1551

SL-1551

Plan Details

BASICS

  • 3
  • 3 full, 1 half
  • 3
  • N0
  • Walkout Basement
  • Main Floor
  • Main Floor
  • 2

SQUARE FOOTAGE

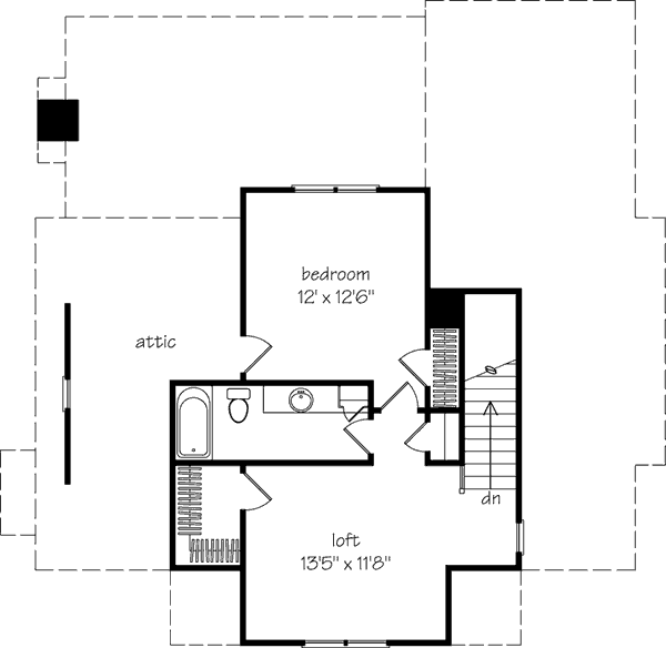
  • 1,235
  • 506
  • 812
  • 2,553

DIMENSIONS

  • 42'0" x 43'0"
  • 31'0"

PLATE HEIGHTS

  • 10.0'
  • 9.0'

CONSTRUCTION

  • 2x4
  • Gable

STYLE / INFLUENCES

  • Country
  • ,
  • Southern
  • ,
  • Craftsman

KITCHEN FEATURES

  • Open Layout
  • ,
  • Snack
  • ,
  • Pantry

PRIMARY BEDROOM FEATURES

  • Walk-in Closet
  • ,
  • Shower
  • ,
  • Outdoor Access
  • ,
  • Single Sink

ADDITIONAL FEATURES

  • Porch
  • ,
  • Fireplace

DESCRIPTION

An easy going, laidback warmth characterizes Wind River. Covered with shingle and board-and-batten siding, this comfortable house makes a great place to escape the daily grind - either as a primary residence or as a getaway spot. Windows graced with planter boxes bring the beauty of the outdoors close-at-hand. Also, eave, post, and roof brackets give Wind River a time-honored appeal.

Full-reverse plans are available for an additional $250. Please call to place an order if you desire a full-reverse set of plans.
TALK to a SPECIALIST!
PLAN PRICING:
Electronic drawing files of the plan.
This, or a PDF Plan set, is required for customization.
Downloadable PDF of full-size drawings.
Best for construction and customization.
Downloadable letter-size PDF with floor plans, exterior elevations, and color photography (if available).
HOW TO PERSONALIZE YOUR PLAN:
  • 1
    SELECT your favorite plan.
  • 2
    SUBMIT your
    list of
    requirements.
  • 3
    CREATE a list of changes.
Get Started!