Stillwater CraftsmanPlan SL-1651
SL-1651
Plan Details
BASICS
- 3
- 2 full, 1 half
- 2
- 2
- Full Basement
- Upper Floor
- Main Floor
- 0
SQUARE FOOTAGE
- 1,151
- 938
- 2,089
- 660
DIMENSIONS
- 64'0" x 50'0"
- 31'0"
PLATE HEIGHTS
- 9.0'
- 8.0'
CONSTRUCTION
- 2x6
- Gable
STYLE / INFLUENCES
- Country ,
- Craftsman
KITCHEN FEATURES
- Open Layout ,
- Snack ,
- Island
PRIMARY BEDROOM FEATURES
- Walk-in Closet ,
- Dual Sinks ,
- Shower ,
- Private Toilet ,
- Spa/Whirlpool
ADDITIONAL FEATURES
- Porch
DESCRIPTION
Our Stillwater Craftsman truly combines the best of the old and new. This home plan incorporates a modified four-square floor plan within a simple craftsman style exterior. The home design effectively brings back memories of grandmas house while providing all of the spaces and functionality to accommodate a modern American family.
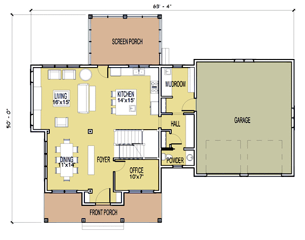
One enters the home via a full width front porch. The foyer includes a place to sit, take off your shoes and hang your coat; all tucked into a nifty niche. The modern open floor plan arranges kitchen, living and dining spaces conveniently to one another. These spaces are defined through a subtle use of soffits, beams, columns and cabinetry. This treatment maintains the sense of intimacy that you would expect in an arts and crafts home. A beautiful screen porch is conveniently entered between the kitchen and living room. A mudroom and hallway zone buffers the main public part of the house from the garage and provides ample space for laundry, lockers, a dump desk and finally powder room.
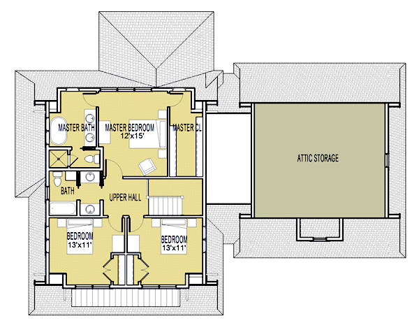
The upstairs floor plan smartly organizes the 3 bedrooms beneath that beautiful roof line. The shared children's bath provides separate zones for bathing and grooming. This allows 2 kids or guests to utilize the bathroom simultaneously. The master suite offers all the space and convenience needed for today's couple.
One enters the home via a full width front porch. The foyer includes a place to sit, take off your shoes and hang your coat; all tucked into a nifty niche. The modern open floor plan arranges kitchen, living and dining spaces conveniently to one another. These spaces are defined through a subtle use of soffits, beams, columns and cabinetry. This treatment maintains the sense of intimacy that you would expect in an arts and crafts home. A beautiful screen porch is conveniently entered between the kitchen and living room. A mudroom and hallway zone buffers the main public part of the house from the garage and provides ample space for laundry, lockers, a dump desk and finally powder room.
The upstairs floor plan smartly organizes the 3 bedrooms beneath that beautiful roof line. The shared children's bath provides separate zones for bathing and grooming. This allows 2 kids or guests to utilize the bathroom simultaneously. The master suite offers all the space and convenience needed for today's couple.
TALK to a SPECIALIST!
PLAN PRICING:
HOW TO PERSONALIZE YOUR PLAN:
- 1SELECT your favorite plan.
- 2SUBMIT yourlist ofrequirements.
- 3CREATE a list of changes.









