SpartaPlan SL-1810

SL-1810

Plan Details

BASICS

  • 3
  • 3 full
  • 1
  • D2
  • Slab
  • Main Floor
  • Main Floor
  • 1

SQUARE FOOTAGE

  • 1,824
  • 1,824
  • 583
  • 221

DIMENSIONS

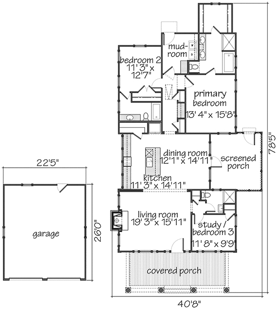
  • 40'8" x 77'9"
  • 21'11"

PLATE HEIGHTS

  • 11.0'

CONSTRUCTION

  • 2x4

STYLE / INFLUENCES

  • Colonial
  • ,
  • Southern

KITCHEN FEATURES

  • Island
  • ,
  • Open Layout
  • ,
  • Snack

PRIMARY BEDROOM FEATURES

  • Dual Sinks
  • ,
  • Shower
  • ,
  • Tub
  • ,
  • Walk-in Closet

ADDITIONAL FEATURES

  • Porch
  • ,
  • Screened Porch

DESCRIPTION

Simple, Doric columns support a wide front porch inviting visitors in to the gracious home that is Sparta. Inside, three bedrooms, a combined living and dining room, and a large screened porch provide inviting spaces for entertaining or quiet time.
TALK to a SPECIALIST!
PLAN PRICING:
Downloadable PDF of full-size drawings.
Best for construction and customization.
Five full sets of construction drawings, copyright protected.
(Floor plans are reversed from plan as shown. All text and dimensions read backwards.)
Recommended for construction bids or pricing. Stamped "Not For Construction".
Purchase price can be applied toward an upgrade to the Construction or PDF Plan set for the same plan.
Downloadable letter-size PDF with floor plans, exterior elevations, and color photography (if available).
HOW TO PERSONALIZE YOUR PLAN:
  • 1
    SELECT your favorite plan.
  • 2
    SUBMIT your
    list of
    requirements.
  • 3
    CREATE a list of changes.
Get Started!