May River HousePlan SL-1860

SL-1860

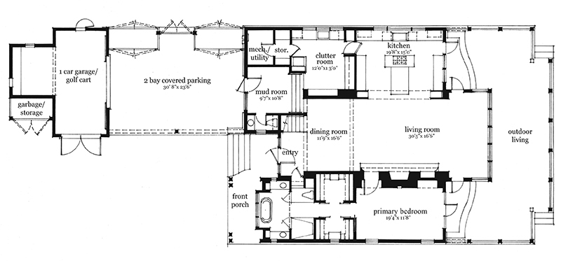
Plan Details

BASICS

  • 5
  • 4 full, 1 half
  • 2
  • 3
  • Crawlspace
  • Main Floor
  • Main Floor
  • 2

SQUARE FOOTAGE

  • 2,307
  • 1,480
  • 3,787
  • 1,110

DIMENSIONS

  • 48'8" x 122'8"
  • 28'10"

PLATE HEIGHTS

  • 9.0'
  • 9.0'

CONSTRUCTION

  • 2x6
  • stick and truss

STYLE / INFLUENCES

  • Southern
  • ,
  • Country

KITCHEN FEATURES

  • Island
  • ,
  • Open Layout

PRIMARY BEDROOM FEATURES

  • Walk-in Closet
  • ,
  • Fireplace
  • ,
  • Dual Sinks
  • ,
  • Private Toilet
  • ,
  • Shower
  • ,
  • Tub
  • ,
  • Porch

ADDITIONAL FEATURES

  • Fireplace
  • ,
  • Deck
  • ,
  • Porch

DESCRIPTION

Mary River House—a classic Lowcountry home—was the 2014 Southern Living Idea House. As architect Ken Pursley describes it, “"The Lowcountry Style has, to me, always been a dance between the understated and the elegant.” This house is the perfect combination of the two.

Design by Pursley Dixon Architects, offered by Neohome LLC.

Learn more about the home and read the article that recently appeared in Southern Living magazine!

TALK to a SPECIALIST!
PLAN PRICING:
Downloadable PDF of full-size drawings.
Best for construction and customization.
Five full sets of construction drawings, copyright protected.
(Floor plans are reversed from plan as shown. All text and dimensions read backwards.)
Recommended for construction bids or pricing. Stamped "Not For Construction".
Purchase price can be applied toward an upgrade to the Construction or PDF Plan set for the same plan.
HOW TO PERSONALIZE YOUR PLAN:
  • 1
    SELECT your favorite plan.
  • 2
    SUBMIT your
    list of
    requirements.
  • 3
    CREATE a list of changes.
Get Started!