Bunkhouse IIPlan SL-1949

SL-1949

Plan Details

BASICS

  • 3
  • 3 full, 1 half
  • 1
  • 0
  • Crawlspace
  • Main Floor
  • Main Floor
  • 1

SQUARE FOOTAGE

  • 1,031
  • 340
  • 1,371

DIMENSIONS

  • 38'0" x 44'0"
  • 20'6"

PLATE HEIGHTS

  • 8.0'
  • 8.0'

CONSTRUCTION

  • 2x6
  • Stick

STYLE / INFLUENCES

  • Cabin
  • ,
  • Cottage
  • ,
  • Country

KITCHEN FEATURES

  • Snack
  • ,
  • U-shaped

PRIMARY BEDROOM FEATURES

  • Tub

ADDITIONAL FEATURES

  • Porch
  • ,
  • Fireplace

DESCRIPTION

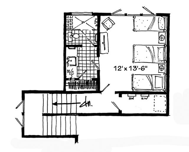
Bunkhouse II is both lakeside cabin and rustic retreat. A large screened porch is the showpiece of the main level, which includes two comfortable bedrooms and two baths. Upstairs, an additional bedroom is perfect for family and guests. Invite them to bunk down and enjoy the serenity of Bunkhouse II.
TALK to a SPECIALIST!
PLAN PRICING:
Downloadable PDF of full-size drawings.
Best for construction and customization.
Five full sets of construction drawings, copyright protected.
(Floor plans are reversed from plan as shown. All text and dimensions read backwards.)
Recommended for construction bids or pricing. Stamped "Not For Construction".
Purchase price can be applied toward an upgrade to the Construction or PDF Plan set for the same plan.
HOW TO PERSONALIZE YOUR PLAN:
  • 1
    SELECT your favorite plan.
  • 2
    SUBMIT your
    list of
    requirements.
  • 3
    CREATE a list of changes.
Get Started!