CarodinePlan SL-1967

SL-1967

Plan Details

BASICS

  • 3
  • 2 full, 1 half
  • 2
  • A2
  • Crawlspace
  • Main Floor
  • Main Floor
  • 1

SQUARE FOOTAGE

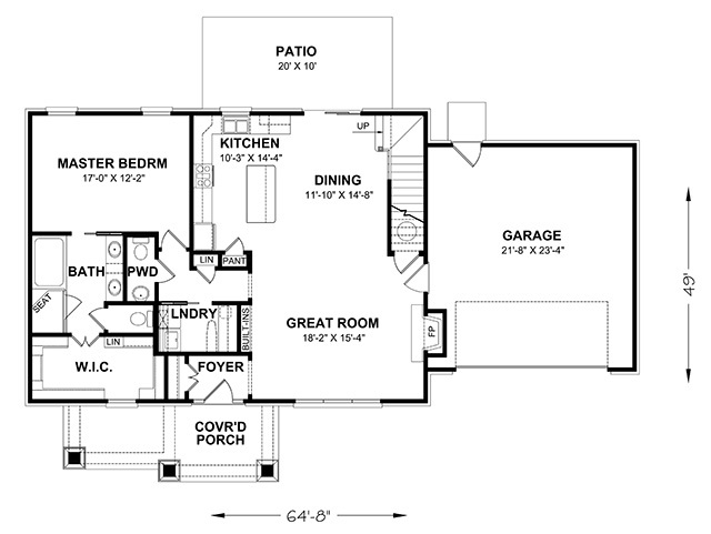
  • 1,237
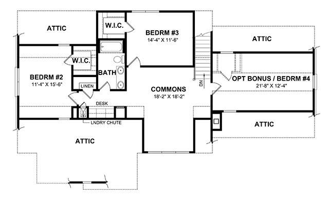
  • 888
  • 2,125
  • 200

DIMENSIONS

  • 64'0" x 49'0"
  • 23'8"

PLATE HEIGHTS

  • 9.0'
  • 8.0'

CONSTRUCTION

  • 2x4

STYLE / INFLUENCES

  • Southern
  • ,
  • traditional

KITCHEN FEATURES

  • Open Layout
  • ,
  • Island
  • ,
  • Pantry
  • ,
  • Snack

PRIMARY BEDROOM FEATURES

  • Dual Sinks
  • ,
  • Private Toilet
  • ,
  • Shower
  • ,
  • Tub
  • ,
  • Walk-in Closet

ADDITIONAL FEATURES

  • Patio
  • ,
  • Fireplace
  • ,
  • Porch
  • ,
  • Bonus Room

DESCRIPTION

Brick, board and batten, and shingles come together on the exterior of Carodine to give this house craftsman charm . We love this plan’s editional features such as the spacious master suite and the ability to expand into the bonus area above the garage for an additional bedroom.
TALK to a SPECIALIST!
PLAN PRICING:
Electronic drawing files of the plan.
This, or a PDF Plan set, is required for customization.
Downloadable PDF of full-size drawings.
Best for construction and customization.
Five full sets of construction drawings, copyright protected.
(Floor plans are reversed from plan as shown. All text and dimensions read backwards.)
Recommended for construction bids or pricing. Stamped "Not For Construction".
Purchase price can be applied toward an upgrade to the Construction or PDF Plan set for the same plan.
HOW TO PERSONALIZE YOUR PLAN:
  • 1
    SELECT your favorite plan.
  • 2
    SUBMIT your
    list of
    requirements.
  • 3
    CREATE a list of changes.
Get Started!