The PettigruPlan SL-1998

SL-1998

Plan Details

BASICS

  • 3
  • 3 full
  • 2
  • A2
  • Crawlspace
  • Main Floor
  • Main Floor

SQUARE FOOTAGE

  • 2,168
  • 973
  • 3,141
  • 498

DIMENSIONS

  • 38'6" x 93'4"
  • 29'3"

PLATE HEIGHTS

  • 10.0'
  • 9.0'

CONSTRUCTION

  • 2x4
  • Truss

STYLE / INFLUENCES

  • Southern
  • ,
  • Cottage
  • ,
  • Coastal

KITCHEN FEATURES

  • Island
  • ,
  • Pantry
  • ,
  • Open Layout

PRIMARY BEDROOM FEATURES

  • Dual Sinks
  • ,
  • Private Toilet
  • ,
  • Shower
  • ,
  • Walk-in Closet

ADDITIONAL FEATURES

  • Fireplace
  • ,
  • Screened Porch

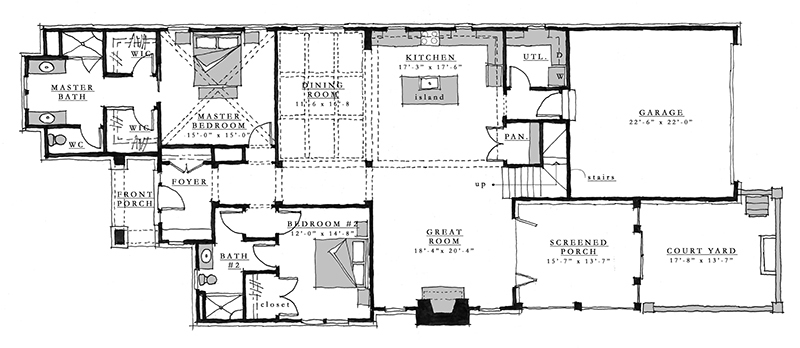
DESCRIPTION

The Pettigru offers luxurious, two-level living. You’ll find a primary bedroom, dining room, and inviting outdoors spaces downstairs, and if you prefer to work from home an upstairs office loft is beckoning.

Design by Tribus Architecture
Photography by Inspiro 8 Studios
TALK to a SPECIALIST!
PLAN PRICING:
Downloadable PDF of full-size drawings.
Best for construction and customization.
Five full sets of construction drawings, copyright protected.
(Floor plans are reversed from plan as shown. All text and dimensions read backwards.)
Recommended for construction bids or pricing. Stamped "Not For Construction".
Purchase price can be applied toward an upgrade to the Construction or PDF Plan set for the same plan.
HOW TO PERSONALIZE YOUR PLAN:
  • 1
    SELECT your favorite plan.
  • 2
    SUBMIT your
    list of
    requirements.
  • 3
    CREATE a list of changes.
Get Started!