Lakeside FarmhousePlan SL-2007

SL-2007

Plan Details

BASICS

  • 4
  • 4 full
  • 2
  • 3-car, Attached
  • Slab
  • Main Floor
  • Main Floor

SQUARE FOOTAGE

  • 2,675
  • 1,206
  • 3,881
  • 304

DIMENSIONS

  • 85'0" x 76'0"
  • 30'0"

PLATE HEIGHTS

  • 10.0'
  • 9.0'

CONSTRUCTION

  • 2x4
  • Stick

STYLE / INFLUENCES

  • Southern
  • ,
  • Colonial
  • ,
  • Farmhouse

KITCHEN FEATURES

  • Island
  • ,
  • Snack
  • ,
  • Pantry
  • ,
  • Open Layout

PRIMARY BEDROOM FEATURES

  • Double Sinks
  • ,
  • Patio
  • ,
  • Private Toilet
  • ,
  • Shower
  • ,
  • Tub
  • ,
  • Walk-in Closet

ADDITIONAL FEATURES

  • Fireplace
  • ,
  • Porch
  • ,
  • Patio
  • ,
  • Screened Porch

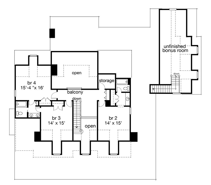
DESCRIPTION

Timeless southern exterior styling with bright, open planning.

Open living-dining room great for entertaining. Sunny kitchen-family room-breakfast room opens to the rear gardens. Vaulted ceiling in the family room with balcony above.

Main level private master suite with his and hers walk-in closet. Study can become a guest bedroom.

Three car garage with large bonus space above.

Zoned living - house is designed for main level living ONLY as the household downsizes i.e (kids move away).
TALK to a SPECIALIST!
PLAN PRICING:
Electronic drawing files of the plan.
This, or a PDF Plan set, is required for customization.
Downloadable PDF of full-size drawings.
Best for construction and customization.
Five full sets of construction drawings, copyright protected.
(Floor plans are reversed from plan as shown. All text and dimensions read backwards.)
Recommended for construction bids or pricing. Stamped "Not For Construction".
Purchase price can be applied toward an upgrade to the Construction or PDF Plan set for the same plan.
Downloadable letter-size PDF with floor plans, exterior elevations, and color photography (if available).
HOW TO PERSONALIZE YOUR PLAN:
  • 1
    SELECT your favorite plan.
  • 2
    SUBMIT your
    list of
    requirements.
  • 3
    CREATE a list of changes.
Get Started!