Deep River FarmhousePlan SL-2059

SL-2059

Plan Details

BASICS

  • 4
  • 3 full, 1 half
  • 2
  • A2
  • Crawlspace
  • Main Floor
  • Main Floor
  • 1

SQUARE FOOTAGE

  • 1,961
  • 1,598
  • 3,559
  • 624

DIMENSIONS

  • 73'6" x 67'0"
  • 32'6"

PLATE HEIGHTS

  • 9.0'
  • 9.0'

CONSTRUCTION

  • 2x4
  • Stick

STYLE / INFLUENCES

  • Southern
  • ,
  • Farmhouse

KITCHEN FEATURES

  • Island
  • ,
  • Nook
  • ,
  • Walk-in Pantry
  • ,
  • Open Layout

PRIMARY BEDROOM FEATURES

  • Dual Sinks
  • ,
  • Private Toilet
  • ,
  • Shower
  • ,
  • Walk-in Closet

ADDITIONAL FEATURES

  • Deck
  • ,
  • Elevator
  • ,
  • Porch
  • ,
  • Fireplace
  • ,
  • Library

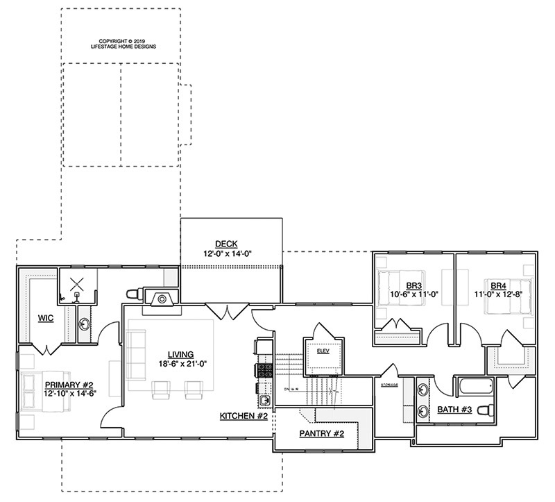
DESCRIPTION

- Multigenerational floor plan for families with adult children and aging parents to stay under one roof
- Dual Primary suites
- Curbless Shower framing details for Primary Bath & grab bar blocking in wall framing details
- Raised garage slab details to allow for stepless entry into the home
- 3/0 doorway width throughout the home
- Stacked Closets for Elevator Installation
TALK to a SPECIALIST!
PLAN PRICING:
Electronic drawing files of the plan.
This, or a PDF Plan set, is required for customization.
Downloadable PDF of full-size drawings.
Best for construction and customization.
Five full sets of construction drawings, copyright protected.
(Floor plans are reversed from plan as shown. All text and dimensions read backwards.)
Recommended for construction bids or pricing. Stamped "Not For Construction".
Purchase price can be applied toward an upgrade to the Construction or PDF Plan set for the same plan.
HOW TO PERSONALIZE YOUR PLAN:
  • 1
    SELECT your favorite plan.
  • 2
    SUBMIT your
    list of
    requirements.
  • 3
    CREATE a list of changes.
Get Started!