Grace Park CottagePlan SL-2063

SL-2063

Plan Details

BASICS

  • 3
  • 2 full, 1 half
  • 2
  • D1
  • Crawlspace
  • Upper Floor
  • Main Floor
  • 1

SQUARE FOOTAGE

  • 1,616
  • 473
  • 2,089
  • 428

DIMENSIONS

  • 34'0" x 72'0"
  • 29'0"

PLATE HEIGHTS

  • 10.0'
  • 9.0'

CONSTRUCTION

  • 2x6
  • Stick

STYLE / INFLUENCES

  • Southern
  • ,
  • Tidewater/Low Country

KITCHEN FEATURES

  • Island
  • ,
  • Open Layout

PRIMARY BEDROOM FEATURES

  • Dual Sinks
  • ,
  • Shower
  • ,
  • Walk-in Closet

ADDITIONAL FEATURES

  • Fireplace
  • ,
  • Porch
  • ,
  • Screened Porch

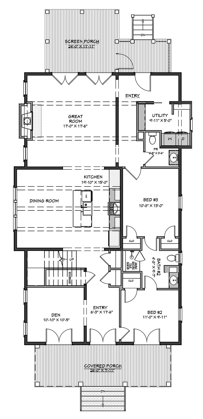
DESCRIPTION

Home is designed to accentuate gathering spaces as well as private retreats for many uses throughout the comfortable and functional living space.

Great Room Ceiling is elevated to 12' to let in light and bring a sense of space and scale to the house. Box beams are used to anchor the Great Room space and more intimate Kitchen/Dining area.

Click here for a virtual walk-through of this design in Habersham.
TALK to a SPECIALIST!
PLAN PRICING:
Electronic drawing files of the plan.
This, or a PDF Plan set, is required for customization.
Downloadable PDF of full-size drawings.
Best for construction and customization.
Five full sets of construction drawings, copyright protected.
(Floor plans are reversed from plan as shown. All text and dimensions read backwards.)
Recommended for construction bids or pricing. Stamped "Not For Construction".
Purchase price can be applied toward an upgrade to the Construction or PDF Plan set for the same plan.
HOW TO PERSONALIZE YOUR PLAN:
  • 1
    SELECT your favorite plan.
  • 2
    SUBMIT your
    list of
    requirements.
  • 3
    CREATE a list of changes.
Get Started!