Louisiana Garden CottagePlan SL-209

SL-209

Plan Details

BASICS

  • 4
  • 2 full
  • 2
  • 2
  • Crawlspace
  • Main Floor
  • Main Floor
  • 2

SQUARE FOOTAGE

  • 1,929
  • 966
  • 2,895
  • 0

DIMENSIONS

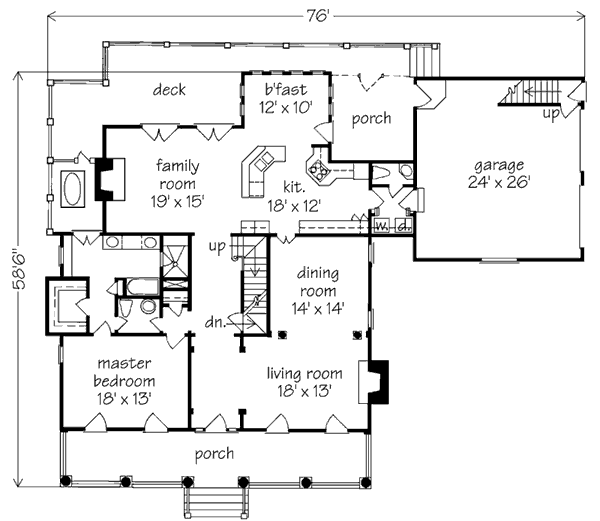
  • 76'0" x 59'0"
  • 0'0"

PLATE HEIGHTS

  • 0.0'
  • 0.0'

CONSTRUCTION

  • 2x4
  • Gable

STYLE / INFLUENCES

  • Country
  • ,
  • Southern

KITCHEN FEATURES

  • Snack
  • ,
  • Nook
  • ,
  • Pantry
  • ,
  • Menu Desk

PRIMARY BEDROOM FEATURES

  • Walk-in Closet
  • ,
  • Dual Sinks
  • ,
  • Shower
  • ,
  • Tub
  • ,
  • Private Toilet
  • ,
  • Deck

ADDITIONAL FEATURES

  • Fireplace
  • ,
  • Deck
  • ,
  • Hot Tub/Outdoor Spa

DESCRIPTION

History speaks to us in many forms. For example, when we think of Louisiana architecture and its rich heritage, some of the most picturesque house styles come to mind. The historic raised cottage conjures images of centuries-old dwellings born along the rivers and bayous. Our own Louisiana Garden Cottage, designed by V. John Tee of Atlanta, continues this tradition. An appealing blend of classic and Creole influences, the house features six massive Doric columns, a broad front gallery, and authentic trim and millwork. The carefully proportioned garage is located to the side of the house. In the classic style, fanlights top its French doors, which are flanked by quarter-round shutters, lending the look of a 19th-century appendage.
TALK to a SPECIALIST!
PLAN PRICING:
Downloadable PDF of full-size drawings.
Best for construction and customization.
Five full sets of construction drawings, copyright protected.
(Floor plans are reversed from plan as shown. All text and dimensions read backwards.)
Recommended for construction bids or pricing. Stamped "Not For Construction".
Purchase price can be applied toward an upgrade to the Construction or PDF Plan set for the same plan.
HOW TO PERSONALIZE YOUR PLAN:
  • 1
    SELECT your favorite plan.
  • 2
    SUBMIT your
    list of
    requirements.
  • 3
    CREATE a list of changes.
Get Started!