Simply TexasPlan SL-211

SL-211

Plan Details

BASICS

  • 4
  • 3 full, 1 half
  • 2
  • 3
  • Slab
  • Main Floor
  • Main Floor
  • 2

SQUARE FOOTAGE

  • 2,638
  • 1,253
  • 3,891
  • 682

DIMENSIONS

  • 99'0" x 84'0"
  • 35'0"

PLATE HEIGHTS

  • 10.0'
  • 9.0'

CONSTRUCTION

  • 2x4
  • Hip

STYLE / INFLUENCES

  • Country
  • ,
  • Southern
  • ,
  • New England
  • ,
  • Colonial

KITCHEN FEATURES

  • Nook
  • ,
  • Island

PRIMARY BEDROOM FEATURES

  • Double Doors
  • ,
  • Dual Access
  • ,
  • Walk-in Closet
  • ,
  • Dual Sinks
  • ,
  • Shower
  • ,
  • Private Toilet
  • ,
  • Spa/Whirlpool
  • ,
  • Patio/Terrace

ADDITIONAL FEATURES

  • Porch
  • ,
  • Skylight(s)
  • ,
  • Fireplace
  • ,
  • Wet Bar

DESCRIPTION

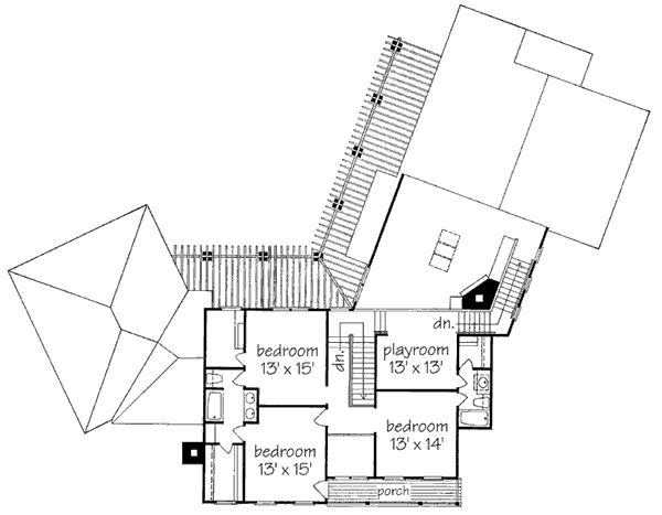
Simply Texas echoes the architecture of the past by combining elements from late 19th- and early 20th-century homes. Notable design elements include the two-story, gabled front; a wing with double porches; simple, square wood columns; and a mix of brick and wood siding.

Responding to the region and its unique heritage, Dallas architect Frank Welch designed Simply Texas with comfortable characteristics, including two fireplaces and a large patio extending across the rear of the house. The master bedroom is separated from the other areas of the house for privacy; the master bath features two walk- in closets, two vanities, a shower, and a garden tub. A small study is located just outside the master suite.

Design by Frank Welch and Associates, Inc.
TALK to a SPECIALIST!
PLAN PRICING:
Downloadable PDF of full-size drawings.
Best for construction and customization.
Five full sets of construction drawings, copyright protected.
(Floor plans are reversed from plan as shown. All text and dimensions read backwards.)
Recommended for construction bids or pricing. Stamped "Not For Construction".
Purchase price can be applied toward an upgrade to the Construction or PDF Plan set for the same plan.
HOW TO PERSONALIZE YOUR PLAN:
  • 1
    SELECT your favorite plan.
  • 2
    SUBMIT your
    list of
    requirements.
  • 3
    CREATE a list of changes.
Get Started!