Courtyard CottagePlan SL-214

SL-214

Plan Details

BASICS

  • 3
  • 2 full
  • 2
  • 2
  • Slab
  • Main Floor
  • Main Floor
  • 1

SQUARE FOOTAGE

  • 1,675
  • 550
  • 2,225
  • 422

DIMENSIONS

  • 85'0" x 42'0"
  • 24'0"

PLATE HEIGHTS

  • 9.0'
  • 8.0'

CONSTRUCTION

  • 2x4
  • Gable

STYLE / INFLUENCES

  • Recreation/Vacation
  • ,
  • Country
  • ,
  • Southern

KITCHEN FEATURES

  • Pantry

PRIMARY BEDROOM FEATURES

  • Walk-in Closet
  • ,
  • Dual Sinks
  • ,
  • Shower
  • ,
  • Spa/Whirlpool
  • ,
  • Patio/Terrace

ADDITIONAL FEATURES

  • Porch
  • ,
  • Fireplace
  • ,
  • Courtyard
  • ,
  • Patio/Terrace
  • ,
  • Pool

DESCRIPTION

Our Courtyard Cottage folds around a private garden and pool area for easy maintenance and year-round enjoyment. It's a true indoor/outdoor house, with its major rooms oriented toward the courtyard. Its simple shape and use of natural materials enhance the home's appealing regional character.

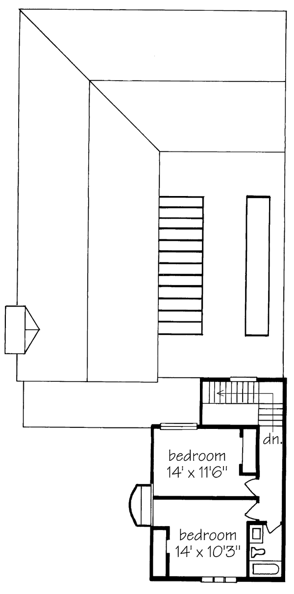
Inside, the gallery acts as a transitional space between the courtyard and house, bringing warm, natural light to the interiors. The gallery leads to a secluded master bedroom suite. The two-story garage wing creates another privacy zone at the entry and motor court. Upstairs rooms may function as bedrooms, a home office, or a private suite. An alternate plan includes details for a barrier-free kitchen and bath.
TALK to a SPECIALIST!
PLAN PRICING:
Downloadable PDF of full-size drawings.
Best for construction and customization.
Five full sets of construction drawings, copyright protected.
(Floor plans are reversed from plan as shown. All text and dimensions read backwards.)
Recommended for construction bids or pricing. Stamped "Not For Construction".
Purchase price can be applied toward an upgrade to the Construction or PDF Plan set for the same plan.
HOW TO PERSONALIZE YOUR PLAN:
  • 1
    SELECT your favorite plan.
  • 2
    SUBMIT your
    list of
    requirements.
  • 3
    CREATE a list of changes.
Get Started!