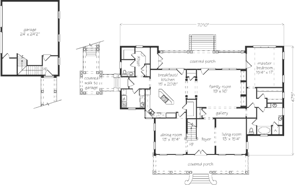
Cypress Garden abounds with traditional features that translate well in any region, but represent the friendly, relaxed lifestyle for which the South is famous. Stately columns placed on a broad front porch establish presence in the neighborhood.
Inside, practicality blends with tradition in a floor plan designed to suit the needs of a growing family. Formality is evident, with a grand foyer flanked by the living room and dining room. A gallery connects the master suite with the family room, which opens into the serviceable kitchen/breakfast room. A rear covered porch runs the length of the breakfast room and family room to the master suite, continuing the easy flow between rooms on the first floor.
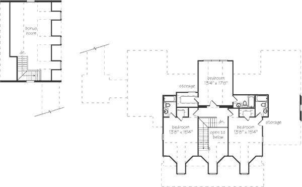
Looney Ricks Kiss Architects, Inc., of Memphis designed Cypress Garden, including a spacious utility room and a comfortable home office. Upstairs, each bedroom has its own bath and a surplus of storage space. There is also a bonus room over the garage that would make a perfect guest suite or recreational room.