Round HillPlan SL-323

SL-323

Plan Details

BASICS

  • 3
  • 2 full, 2 half
  • 1
  • 2
  • Crawlspace
  • Main Floor
  • Main Floor
  • 2

SQUARE FOOTAGE

  • 2,302
  • 0
  • 2,302
  • 522

DIMENSIONS

  • 76'0" x 77'0"
  • 26'0"

PLATE HEIGHTS

  • 9.0'
  • 8.0'

CONSTRUCTION

  • 2x4
  • Gable

STYLE / INFLUENCES

  • Country
  • ,
  • Southern
  • ,
  • Farmhouse

KITCHEN FEATURES

  • Open Layout
  • ,
  • Snack
  • ,
  • Nook
  • ,
  • Pantry

PRIMARY BEDROOM FEATURES

  • Double Doors
  • ,
  • Walk-in Closet
  • ,
  • Dual Sinks
  • ,
  • Shower
  • ,
  • Outdoor Access
  • ,
  • Private Toilet
  • ,
  • Spa/Whirlpool
  • ,
  • Deck

ADDITIONAL FEATURES

  • Porch
  • ,
  • Fireplace
  • ,
  • Deck

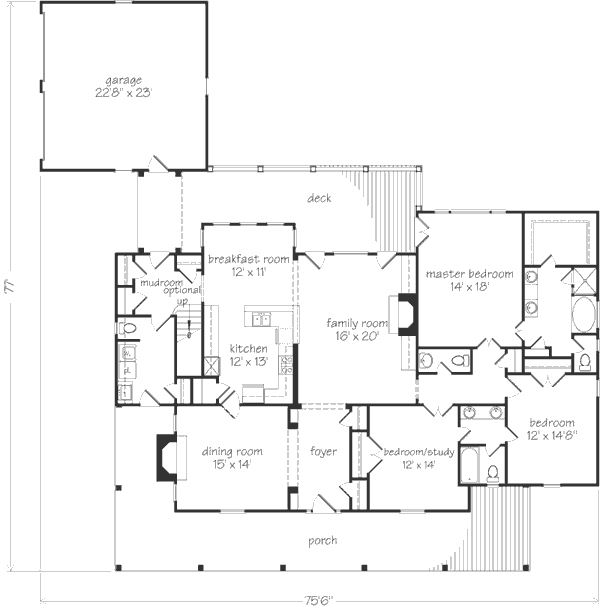
DESCRIPTION

With a slightly rustic look that's sure to make you feel at home, this friendly design is a great fit for your family.

At the heart of the home, the family room features a vaulted ceiling and smart shelves on either side of the central fireplace. Another fireplace in the dining room is a warming touch for elegant or everyday meals. A back deck is the ideal spot for outdoor entertaining, while an optional guest room upstairs (an additional 295 square feet) gives you the flexibility to house overnight or extended visitors.

A main-floor study can also convert to a bedroom with an adjoining bath. Secluded and posh, the master suite is a real haven of peace.
TALK to a SPECIALIST!
PLAN PRICING:
Downloadable PDF of full-size drawings.
Best for construction and customization.
Five full sets of construction drawings, copyright protected.
(Floor plans are reversed from plan as shown. All text and dimensions read backwards.)
Recommended for construction bids or pricing. Stamped "Not For Construction".
Purchase price can be applied toward an upgrade to the Construction or PDF Plan set for the same plan.
HOW TO PERSONALIZE YOUR PLAN:
  • 1
    SELECT your favorite plan.
  • 2
    SUBMIT your
    list of
    requirements.
  • 3
    CREATE a list of changes.
Get Started!