OxfordPlan SL-324

SL-324

Plan Details

BASICS

  • 3
  • 2 full, 2 half
  • 1
  • 2
  • Full Basement
  • Main Floor
  • Main Floor
  • 2

SQUARE FOOTAGE

  • 2,404
  • 2,404
  • 520

DIMENSIONS

  • 70'0" x 63'0"
  • 28'0"

PLATE HEIGHTS

  • 9.0'

CONSTRUCTION

  • 2x4
  • Gable

STYLE / INFLUENCES

  • European
  • ,
  • Country
  • ,
  • Southern

KITCHEN FEATURES

  • Open Layout
  • ,
  • Snack
  • ,
  • Nook
  • ,
  • Island

PRIMARY BEDROOM FEATURES

  • Double Doors
  • ,
  • Walk-in Closet
  • ,
  • Dual Sinks
  • ,
  • Shower
  • ,
  • Sitting Area
  • ,
  • Fireplace
  • ,
  • Private Toilet
  • ,
  • Spa/Whirlpool

ADDITIONAL FEATURES

  • Porch
  • ,
  • Fireplace
  • ,
  • Split Bedrooms
  • ,
  • Deck

DESCRIPTION

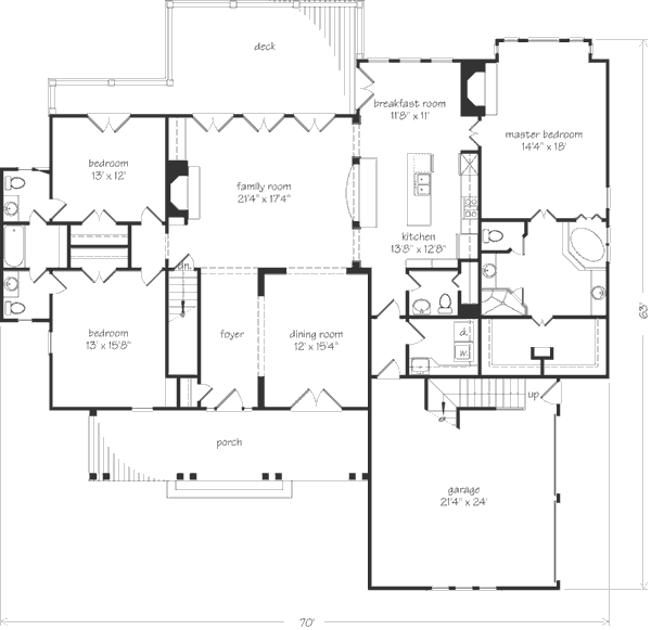
Classically styled but designed for modern lifestyles, this home is an easy fit for any family. The central family room boasts three sets of French doors that open out to an expansive deck - the perfect place to relax, eat or linger over after-dinner conversation. Several rooms benefit from access to this deck, including the breakfast room, the family room and a secondary bedroom. The adjoining breakfast room and well-appointed kitchen ease day-to-day living.

A fireplace in the master bedroom warms a bright sitting nook, while the spacious master bath leads to large walk-in closet. Two secondary bedrooms share an adjoining bath but have private vanities and toilets - a must for growing families.
TALK to a SPECIALIST!
PLAN PRICING:
Downloadable PDF of full-size drawings.
Best for construction and customization.
Five full sets of construction drawings, copyright protected.
(Floor plans are reversed from plan as shown. All text and dimensions read backwards.)
Recommended for construction bids or pricing. Stamped "Not For Construction".
Purchase price can be applied toward an upgrade to the Construction or PDF Plan set for the same plan.
HOW TO PERSONALIZE YOUR PLAN:
  • 1
    SELECT your favorite plan.
  • 2
    SUBMIT your
    list of
    requirements.
  • 3
    CREATE a list of changes.
Get Started!