Moore's CreekPlan SL-325

SL-325

Plan Details

BASICS

  • 2
  • 2 full, 2 half
  • 1
  • 2
  • Walkout Basement
  • Main Floor
  • Main Floor
  • 2

SQUARE FOOTAGE

  • 2,540
  • 0
  • 2,540
  • 550

DIMENSIONS

  • 84'0" x 53'0"
  • 26'0"

PLATE HEIGHTS

  • 9.0'

CONSTRUCTION

  • 2x4
  • Gable

STYLE / INFLUENCES

  • European
  • ,
  • Country
  • ,
  • Southern
  • ,
  • Shingle

KITCHEN FEATURES

  • Nook
  • ,
  • Island
  • ,
  • Snack

PRIMARY BEDROOM FEATURES

  • Walk-in Closet
  • ,
  • Dual Sinks
  • ,
  • Shower
  • ,
  • Private Toilet
  • ,
  • Spa/Whirlpool
  • ,
  • Deck

ADDITIONAL FEATURES

  • Porch
  • ,
  • Skylight(s)
  • ,
  • Fireplace
  • ,
  • Deck

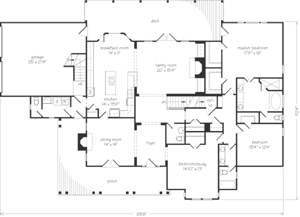
DESCRIPTION

Comfort and convenience are the order of the day with the Moore's Creek, a classic country design complete with dormers and a wraparound front porch. Fireplaces in the family and dining rooms provide warmth and ambience, while the spacious kitchen opens to a breakfast room and expansive deck. The family room features a vaulted ceiling. A bedroom off the foyer doubles as a study.
TALK to a SPECIALIST!
PLAN PRICING:
Downloadable PDF of full-size drawings.
Best for construction and customization.
Five full sets of construction drawings, copyright protected.
(Floor plans are reversed from plan as shown. All text and dimensions read backwards.)
Recommended for construction bids or pricing. Stamped "Not For Construction".
Purchase price can be applied toward an upgrade to the Construction or PDF Plan set for the same plan.
HOW TO PERSONALIZE YOUR PLAN:
  • 1
    SELECT your favorite plan.
  • 2
    SUBMIT your
    list of
    requirements.
  • 3
    CREATE a list of changes.
Get Started!