AndrewsPlan SL-562

SL-562

Plan Details

BASICS

  • 4
  • 2 full, 1 half
  • 2
  • 2
  • Crawlspace
  • Upper Floor
  • Main Floor
  • 3

SQUARE FOOTAGE

  • 1,677
  • 1,377
  • 3,054
  • 526

DIMENSIONS

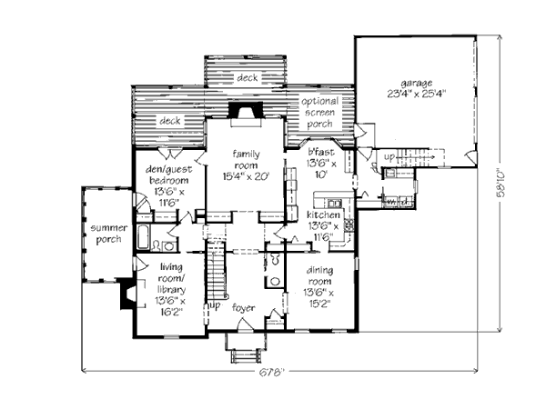
  • 68'0" x 59'0"
  • 28'0"

PLATE HEIGHTS

  • 9.0'
  • 8.0'

CONSTRUCTION

  • 2x4
  • Gable

STYLE / INFLUENCES

  • New England
  • ,
  • Country
  • ,
  • Southern
  • ,
  • Colonial

KITCHEN FEATURES

  • Pantry
  • ,
  • Snack
  • ,
  • Nook

PRIMARY BEDROOM FEATURES

  • Spa/Whirlpool
  • ,
  • Dual Sinks
  • ,
  • Fireplace
  • ,
  • Shower
  • ,
  • Walk-in Closet
  • ,
  • Porch

ADDITIONAL FEATURES

  • Skylight(s)
  • ,
  • Deck
  • ,
  • Fireplace
  • ,
  • Porch

DESCRIPTION

The Andrews echoes the architecture of the past while combining elements from early 20th-century dwellings. Like many homes built during the twenties and thirties, this one recalls the character of the Georgian style with elegant detailing and an all-brick exterior. Responding to the needs of a contemporary family, Atlanta architect John Tee thoughtfully designed the interior.

Rooms are arranged around a center hall, and porches and decks extend living areas to the outdoors. Long windows and 9-foot ceilings add light and volume.
TALK to a SPECIALIST!
PLAN PRICING:
Downloadable PDF of full-size drawings.
Best for construction and customization.
Five full sets of construction drawings, copyright protected.
(Floor plans are reversed from plan as shown. All text and dimensions read backwards.)
Recommended for construction bids or pricing. Stamped "Not For Construction".
Purchase price can be applied toward an upgrade to the Construction or PDF Plan set for the same plan.
HOW TO PERSONALIZE YOUR PLAN:
  • 1
    SELECT your favorite plan.
  • 2
    SUBMIT your
    list of
    requirements.
  • 3
    CREATE a list of changes.
Get Started!