CumberlandPlan SL-566

SL-566

Plan Details

BASICS

  • 3
  • 2 full, 1 half
  • 2
  • 2
  • Crawlspace
  • Main Floor
  • Main Floor
  • 1

SQUARE FOOTAGE

  • 1,949
  • 983
  • 2,932
  • 624

DIMENSIONS

  • 76'0" x 59'0"
  • 24'0"

PLATE HEIGHTS

  • 9.0'
  • 9.0'

CONSTRUCTION

  • 2x4
  • Gable

STYLE / INFLUENCES

  • Country
  • ,
  • Southern
  • ,
  • New England
  • ,
  • Colonial

KITCHEN FEATURES

  • Snack
  • ,
  • Nook
  • ,
  • Pantry
  • ,
  • Menu Desk

PRIMARY BEDROOM FEATURES

  • Walk-in Closet
  • ,
  • Porch
  • ,
  • Shower
  • ,
  • Tub
  • ,
  • Deck
  • ,
  • Triple Sinks

ADDITIONAL FEATURES

  • Porch
  • ,
  • Fireplace
  • ,
  • Deck
  • ,
  • Hot Tub/Outdoor Spa

DESCRIPTION

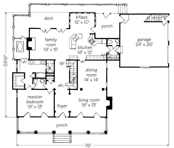
Influenced by the Lowcountry style, the Cumberland echoes traditional cottages of the region. John Tee of Atlanta designed this house with a carefully proportioned, columned front porch. The front wall is finished in stucco, while other exterior walls are of wood siding.

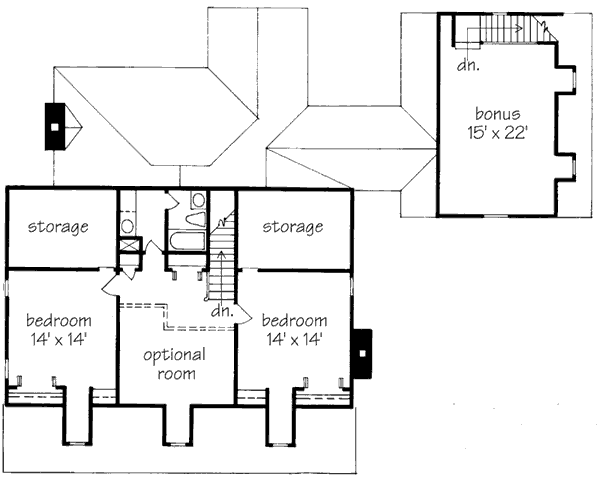
The open floor plan is ideal for entertaining family and friends. A U-shaped bar conveniently separates the kitchen from the family room. Two sets of French doors open onto a rear deck that's large enough to accommodate outdoor parties. A hidden treasure in this house is the private garden area with spa tub off the master bath. Upstairs are additional storage areas.
TALK to a SPECIALIST!
PLAN PRICING:
Downloadable PDF of full-size drawings.
Best for construction and customization.
Five full sets of construction drawings, copyright protected.
(Floor plans are reversed from plan as shown. All text and dimensions read backwards.)
Recommended for construction bids or pricing. Stamped "Not For Construction".
Purchase price can be applied toward an upgrade to the Construction or PDF Plan set for the same plan.
HOW TO PERSONALIZE YOUR PLAN:
  • 1
    SELECT your favorite plan.
  • 2
    SUBMIT your
    list of
    requirements.
  • 3
    CREATE a list of changes.
Get Started!