Chestnut HillPlan SL-571

SL-571

Plan Details

BASICS

  • 3
  • 3 full, 1 half
  • 2
  • 2
  • Walkout Basement
  • Main Floor
  • Main Floor
  • 1

SQUARE FOOTAGE

  • 1,934
  • 1,064
  • 2,998
  • 572

DIMENSIONS

  • 81'0" x 81'0"
  • 29'0"

PLATE HEIGHTS

  • 9.0'
  • 8.3'

CONSTRUCTION

  • 2x4
  • Gable

STYLE / INFLUENCES

  • European
  • ,
  • Country
  • ,
  • Southern
  • ,
  • Shingle
  • ,
  • Craftsman

KITCHEN FEATURES

  • Nook
  • ,
  • Island

PRIMARY BEDROOM FEATURES

  • Double Doors
  • ,
  • Walk-in Closet
  • ,
  • Dual Sinks
  • ,
  • Shower
  • ,
  • Sitting Area
  • ,
  • Private Toilet
  • ,
  • Spa/Whirlpool

ADDITIONAL FEATURES

  • Fireplace
  • ,
  • Workshop/Workbench
  • ,
  • Deck

DESCRIPTION

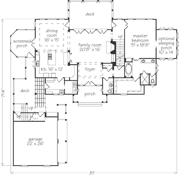
1997 Southern Living Idea House, Chestnut Hill combines the relaxed exterior of a mountain retreat with an open and modern floor plan.

The main living areas are toward the rear of the house, where large windows provide magnificent views to the outdoors. The family room is enhanced by a vaulted ceiling and three sets of French doors that open onto the rear deck. A screened porch off the dining room allows for elegant outdoor dining.

Upstairs, the two bedrooms, connected by a gallery, each have a private bath.
TALK to a SPECIALIST!
PLAN PRICING:
Downloadable PDF of full-size drawings.
Best for construction and customization.
Five full sets of construction drawings, copyright protected.
(Floor plans are reversed from plan as shown. All text and dimensions read backwards.)
Recommended for construction bids or pricing. Stamped "Not For Construction".
Purchase price can be applied toward an upgrade to the Construction or PDF Plan set for the same plan.
HOW TO PERSONALIZE YOUR PLAN:
  • 1
    SELECT your favorite plan.
  • 2
    SUBMIT your
    list of
    requirements.
  • 3
    CREATE a list of changes.
Get Started!