Chestnut Hill AlternatePlan SL-583

SL-583

Plan Details

BASICS

  • 3
  • 2 full, 1 half
  • 2
  • 2
  • Walkout Basement
  • Main Floor
  • Main Floor
  • 1

SQUARE FOOTAGE

  • 1,365
  • 740
  • 2,105
  • 481

DIMENSIONS

  • 62'0" x 64'0"
  • 27'0"

PLATE HEIGHTS

  • 9.0'
  • 8.0'

CONSTRUCTION

  • 2x4
  • Gable

STYLE / INFLUENCES

  • Recreation/Vacation
  • ,
  • European
  • ,
  • Country
  • ,
  • Southern
  • ,
  • Craftsman

KITCHEN FEATURES

  • Open Layout
  • ,
  • Snack
  • ,
  • Island

PRIMARY BEDROOM FEATURES

  • Walk-in Closet
  • ,
  • Porch
  • ,
  • Shower
  • ,
  • Sitting Area
  • ,
  • Spa/Whirlpool
  • ,
  • Single Sink

ADDITIONAL FEATURES

  • Porch
  • ,
  • Skylight(s)
  • ,
  • Fireplace
  • ,
  • Deck

DESCRIPTION

The interior of this design is filled with natural light, thanks to an free-flowing floor plan and three sets of French doors that open onto the rear deck. A cooktop island in the kitchen serves as a wonderful area for preparing gourmet meals. The main-floor master bedroom features a large walk-in closet and bath.

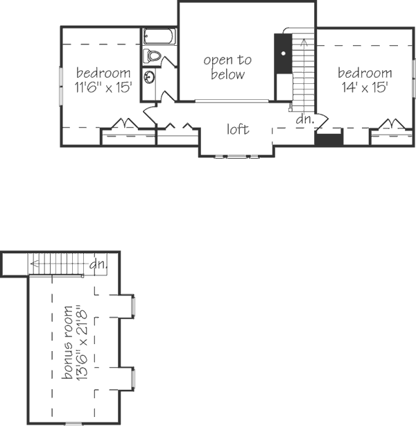
Upstairs, two bedrooms three-piece bath are connected via a loft, which provides additional space for an office or sitting area. A bonus room is located above the garage.
TALK to a SPECIALIST!
PLAN PRICING:
Downloadable PDF of full-size drawings.
Best for construction and customization.
Five full sets of construction drawings, copyright protected.
(Floor plans are reversed from plan as shown. All text and dimensions read backwards.)
Recommended for construction bids or pricing. Stamped "Not For Construction".
Purchase price can be applied toward an upgrade to the Construction or PDF Plan set for the same plan.
HOW TO PERSONALIZE YOUR PLAN:
  • 1
    SELECT your favorite plan.
  • 2
    SUBMIT your
    list of
    requirements.
  • 3
    CREATE a list of changes.
Get Started!