Great FallsPlan SL-664

SL-664

Plan Details

BASICS

  • 4
  • 2 full, 1 half
  • 2
  • 2
  • Full Basement
  • Upper Floor
  • Main Floor
  • 1

SQUARE FOOTAGE

  • 1,362
  • 1,333
  • 2,695
  • 395

DIMENSIONS

  • 51'0" x 45'0"
  • 32'0"

PLATE HEIGHTS

  • 9.0'
  • 8.0'

CONSTRUCTION

  • 2x4
  • Gable

STYLE / INFLUENCES

  • European
  • ,
  • Country
  • ,
  • Southern
  • ,
  • New England
  • ,
  • Colonial

KITCHEN FEATURES

  • Open Layout
  • ,
  • Island
  • ,
  • Pantry

PRIMARY BEDROOM FEATURES

  • Walk-in Closet
  • ,
  • Dual Sinks
  • ,
  • Shower
  • ,
  • Sitting Area
  • ,
  • Spa/Whirlpool
  • ,
  • Deck

ADDITIONAL FEATURES

  • Porch
  • ,
  • Fireplace

DESCRIPTION

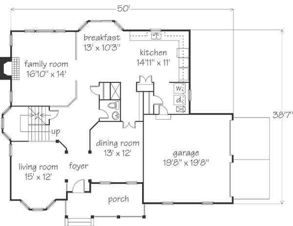
Today's beloved architectural styles mirror homes built during the prewar era. Our Great Falls combines elegantly refined details with a classic brick facade. Gables joined by a one-story loggia and colonnade frame the entry, creating an inviting welcome for guests.

CHK Architects Residential Design Studio of Silver Spring, Maryland, designed the interior of the house to capture views to the outdoors. The spacious rooms throughout Great Falls also maintain an easy circulation pattern, making it perfect for entertaining.
TALK to a SPECIALIST!
PLAN PRICING:
Downloadable PDF of full-size drawings.
Best for construction and customization.
Five full sets of construction drawings, copyright protected.
(Floor plans are reversed from plan as shown. All text and dimensions read backwards.)
Recommended for construction bids or pricing. Stamped "Not For Construction".
Purchase price can be applied toward an upgrade to the Construction or PDF Plan set for the same plan.
HOW TO PERSONALIZE YOUR PLAN:
  • 1
    SELECT your favorite plan.
  • 2
    SUBMIT your
    list of
    requirements.
  • 3
    CREATE a list of changes.
Get Started!