Wisteria - Cottage EPlan SL-946

SL-946

Plan Details

BASICS

  • 3
  • 2 full, 1 half
  • 2
  • 0
  • Walkout Basement
  • Main Floor
  • Main Floor
  • 1

SQUARE FOOTAGE

  • 1,108
  • 694
  • 0
  • 1,802

DIMENSIONS

  • 44'0" x 39'0"
  • 29'0"

PLATE HEIGHTS

  • 10.0'
  • 8.3'

CONSTRUCTION

  • 2x4
  • Gable

STYLE / INFLUENCES

  • European
  • ,
  • Country
  • ,
  • Shingle
  • ,
  • Bungalow

KITCHEN FEATURES

  • Snack
  • ,
  • Island
  • ,
  • Pantry

PRIMARY BEDROOM FEATURES

  • Walk-in Closet
  • ,
  • Dual Sinks
  • ,
  • Shower
  • ,
  • Spa/Whirlpool

ADDITIONAL FEATURES

  • Porch
  • ,
  • Fireplace

DESCRIPTION

The Wisteria is designed with flexibility. The charming cottage exterior is shown in cedar shake and is complemented by board-and-batten shutters. With its optional terrace level, this cottage would be right at home tucked on a hillside or in a suburban neighborhood. The lower level offers a private family room and guestroom with a full bath.

The main level of the home has an open, island-centered kitchen, a large screened porch, and a spacious master suite. A fireplace and many windows in the family room create an inviting space.

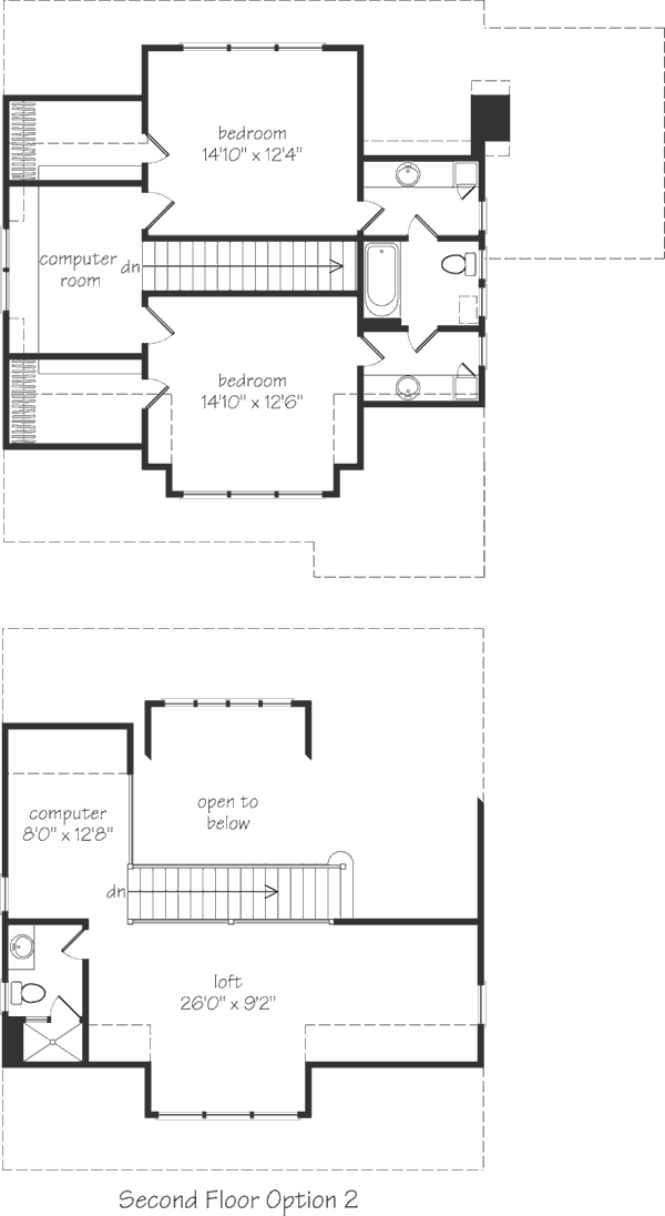
Upstairs, two additional bedrooms and a roomy loft complete the home.
TALK to a SPECIALIST!
PLAN PRICING:
Downloadable PDF of full-size drawings.
Best for construction and customization.
Five full sets of construction drawings, copyright protected.
(Floor plans are reversed from plan as shown. All text and dimensions read backwards.)
Recommended for construction bids or pricing. Stamped "Not For Construction".
Purchase price can be applied toward an upgrade to the Construction or PDF Plan set for the same plan.
HOW TO PERSONALIZE YOUR PLAN:
  • 1
    SELECT your favorite plan.
  • 2
    SUBMIT your
    list of
    requirements.
  • 3
    CREATE a list of changes.
Get Started!