Tidewater CottagePlan SL-998

SL-998

Plan Details

BASICS

  • 3
  • 3 full
  • 3
  • 0
  • Pier
  • Upper Floor
  • Main Floor
  • 1

SQUARE FOOTAGE

  • 975
  • 643
  • 92
  • 1,710

DIMENSIONS

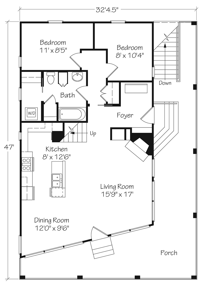
  • 32'4" x 47'0"
  • 31'0"

PLATE HEIGHTS

  • 9.0'
  • 8.0'

CONSTRUCTION

  • 2x4
  • Hip

STYLE / INFLUENCES

  • Recreation/Vacation
  • ,
  • Southern
  • ,
  • Beach/Coastal
  • ,
  • Tidewater/Low Country

KITCHEN FEATURES

  • Open Layout
  • ,
  • Nook
  • ,
  • Island

PRIMARY BEDROOM FEATURES

  • Sitting Area

ADDITIONAL FEATURES

  • Porch
  • ,
  • Fireplace

DESCRIPTION

Tidewater Cottage is a perfectly designed escape that maximizes indoor/outdoor living. After a day at the beach, stow gear in the storage room and wash off sand in a bathroom located on the ground floor. On the main level, the kitchen flows into the dining room and living room and two bedrooms are quarters for friends and family. Walls of windows look out to the wrap-around porch, a perfect place to enjoy ocean breezes and sunsets over the water. Upstairs await the primary bedroom and a bunk room. A third-floor loft offers a panoramic view.
TALK to a SPECIALIST!
PLAN PRICING:
Electronic drawing files of the plan.
This, or a PDF Plan set, is required for customization.
(Floor plans are reversed from plan as shown. All text and dimensions read normally.)
Downloadable PDF of full-size drawings.
Best for construction and customization.
(Floor plans are reversed from plan as shown. All text and dimensions read normally.)
Five full sets of construction drawings, copyright protected.
(Floor plans are reversed from plan as shown. All text and dimensions read normally.)
Recommended for construction bids or pricing. Stamped "Not For Construction".
Purchase price can be applied toward an upgrade to the Construction or PDF Plan set for the same plan.
(Floor plans are reversed from plan as shown. All text and dimensions read normally.)
Downloadable letter-size PDF with floor plans, exterior elevations, and color photography (if available).
HOW TO PERSONALIZE YOUR PLAN:
  • 1
    SELECT your favorite plan.
  • 2
    SUBMIT your
    list of
    requirements.
  • 3
    CREATE a list of changes.
Get Started!