BrookfieldPlan SL-074

SL-074

Plan Details

BASICS

  • 3
  • 5 full
  • 2
  • 2
  • Crawlspace, Walkout Basement
  • Main Floor
  • Main Floor
  • 1

SQUARE FOOTAGE

  • 2,645
  • 852
  • 0
  • 3,497
  • 610

DIMENSIONS

  • 95'0" x 60'0"
  • 32'0"

PLATE HEIGHTS

  • 10.0'
  • 9.0'

CONSTRUCTION

  • 2x4
  • Gable

STYLE / INFLUENCES

  • Country
  • ,
  • Southern
  • ,
  • New England
  • ,
  • Colonial

KITCHEN FEATURES

  • Open Layout
  • ,
  • Nook
  • ,
  • Island
  • ,
  • Pantry

PRIMARY BEDROOM FEATURES

  • Dual Access
  • ,
  • Walk-in Closet
  • ,
  • Dual Sinks
  • ,
  • Shower
  • ,
  • Tub
  • ,
  • Private Toilet
  • ,
  • Deck

ADDITIONAL FEATURES

  • Porch
  • ,
  • Fireplace
  • ,
  • Deck

DESCRIPTION

The 2004 Southern Living Idea House

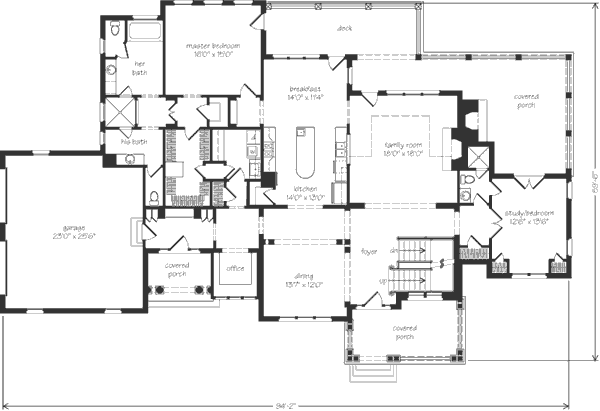
Our favorite highlights of Brookfield begin outside. The front porch combines with the friends’ entry and a wraparound rear porch and deck.

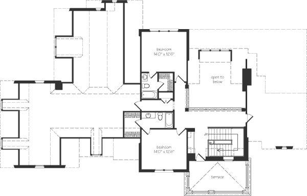
Once inside, a generous sitting room on the first floor can also double as a guest room or hobby room. The laundry room is directly accessible to the master bedroom closet. The two upstairs bedrooms feature walk-in closets and separate baths. Designed by Caldwell-Cline Architects and Designers, Inc., the working drawings come complete with details for either a basement or crawlspace foundation.
TALK to a SPECIALIST!
PLAN PRICING:
Electronic drawing files of the plan.
This, or a PDF Plan set, is required for customization.
Downloadable PDF of full-size drawings.
Best for construction and customization.
Five full sets of construction drawings, copyright protected.
(Floor plans are reversed from plan as shown. All text and dimensions read backwards.)
Recommended for construction bids or pricing. Stamped "Not For Construction".
Purchase price can be applied toward an upgrade to the Construction or PDF Plan set for the same plan.
Downloadable letter-size PDF with floor plans, exterior elevations, and color photography (if available).
HOW TO PERSONALIZE YOUR PLAN:
  • 1
    SELECT your favorite plan.
  • 2
    SUBMIT your
    list of
    requirements.
  • 3
    CREATE a list of changes.
Get Started!