Magnolia SpringsPlan SL-1350

SL-1350

Plan Details

BASICS

  • 3
  • 2 full, 1 half
  • 1
  • A3
  • Crawlspace, Slab, Walkout Basement
  • Main Floor
  • Main Floor
  • 1

SQUARE FOOTAGE

  • 2,811
  • 795
  • 3,606
  • 773

DIMENSIONS

  • 72'0" x 82'0"
  • 27'0"

PLATE HEIGHTS

  • 9.0'
  • 8.0'

CONSTRUCTION

  • 2x4
  • Hip

STYLE / INFLUENCES

  • European
  • ,
  • Country
  • ,
  • Craftsman

KITCHEN FEATURES

  • Open Layout
  • ,
  • Snack
  • ,
  • Nook
  • ,
  • Island
  • ,
  • Pantry

PRIMARY BEDROOM FEATURES

  • Walk-in Closet
  • ,
  • Dual Sinks
  • ,
  • Shower
  • ,
  • Outdoor Access
  • ,
  • Private Toilet
  • ,
  • Spa/Whirlpool

ADDITIONAL FEATURES

  • Porch
  • ,
  • Fireplace

DESCRIPTION

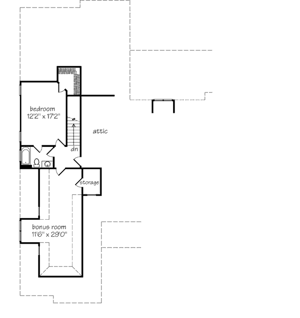
This one-story design includes plans for an optional second floor, which features an additional bedroom suite and a bonus area above the garage.

Full-reverse plans are available for an additional $250. Please call to place an order if you desire a full-reverse set of plans.
TALK to a SPECIALIST!
PLAN PRICING:
Electronic drawing files of the plan.
This, or a PDF Plan set, is required for customization.
Downloadable PDF of full-size drawings.
Best for construction and customization.
HOW TO PERSONALIZE YOUR PLAN:
  • 1
    SELECT your favorite plan.
  • 2
    SUBMIT your
    list of
    requirements.
  • 3
    CREATE a list of changes.
Get Started!