Fairview RidgePlan SL-1423

SL-1423

Plan Details

BASICS

  • 3
  • 4 full
  • 2
  • 0
  • Crawlspace
  • Upper Floor
  • Main Floor
  • 2

SQUARE FOOTAGE

  • 1,122
  • 975
  • 2,097

DIMENSIONS

  • 36'8" x 52'4"
  • 28'0"

PLATE HEIGHTS

  • 10.0'
  • 7.0'

CONSTRUCTION

  • 2x6
  • Gable

STYLE / INFLUENCES

  • Country
  • ,
  • Southern
  • ,
  • Farmhouse

KITCHEN FEATURES

  • Snack
  • ,
  • Island

PRIMARY BEDROOM FEATURES

  • Walk-in Closet
  • ,
  • Dual Sinks
  • ,
  • Shower

ADDITIONAL FEATURES

  • Porch
  • ,
  • Fireplace

DESCRIPTION

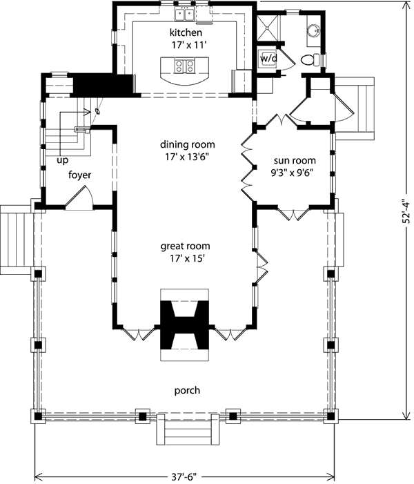
This craftsman-inspired home was designed for a community called Breakaway, north of Asheville, North Carolina. Stone, wood shake siding, standing-seam metals roofs, bracketed gables and exposed rafter tails add rustic charm to the exterior. Designed by Allison Ramsey Architects, the house features 2,097 sq. ft., 3 bedrooms and 4 baths. The kitchen, dining room and Great Room flow seamlessly, giving an airy, open feel to the main level and making entertaining a breeze. A cheery sunroom can double as a home office or playroom. Multiple sets of French doors lead outside to the roomy, wraparound porch. Enjoy the double fireplace year-round from inside or out. Thoughtful design ensures that not an inch of space is wasted upstairs. The bedrooms are accessed from a central hallway. Each has a private, attached bathroom. The master bedroom features views in three directions.
TALK to a SPECIALIST!
PLAN PRICING:
Downloadable PDF of full-size drawings.
Best for construction and customization.
Five full sets of construction drawings, copyright protected.
(Floor plans are reversed from plan as shown. All text and dimensions read backwards.)
Recommended for construction bids or pricing. Stamped "Not For Construction".
Purchase price can be applied toward an upgrade to the Construction or PDF Plan set for the same plan.
Downloadable letter-size PDF with floor plans, exterior elevations, and color photography (if available).
HOW TO PERSONALIZE YOUR PLAN:
  • 1
    SELECT your favorite plan.
  • 2
    SUBMIT your
    list of
    requirements.
  • 3
    CREATE a list of changes.
Get Started!