Tarpon RunPlan SL-1589

SL-1589

Plan Details

BASICS

  • 5
  • 5 full, 1 half
  • 3
  • D2
  • Crawlspace
  • Main Floor
  • Basement
  • 2

SQUARE FOOTAGE

  • 1,293
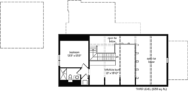
  • 639
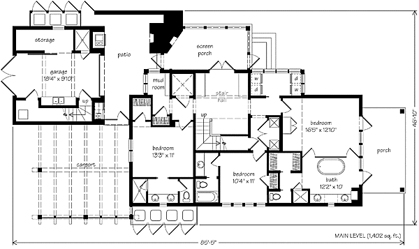
  • 1,402
  • 3,334
  • 0

DIMENSIONS

  • 40'0" x 60'0"
  • 45'0"

PLATE HEIGHTS

  • 10.0'
  • 9.0'

CONSTRUCTION

  • 2x6
  • Gable

STYLE / INFLUENCES

  • Recreation/Vacation
  • ,
  • Beach/Coastal

KITCHEN FEATURES

  • Open Layout
  • ,
  • Snack
  • ,
  • Nook
  • ,
  • Pantry

PRIMARY BEDROOM FEATURES

  • Walk-in Closet
  • ,
  • Porch
  • ,
  • Dual Sinks
  • ,
  • Shower
  • ,
  • Outdoor Access
  • ,
  • Private Toilet
  • ,
  • Spa/Whirlpool

ADDITIONAL FEATURES

  • Porch
  • ,
  • Fireplace
  • ,
  • Workshop/Workbench
  • ,
  • Deck
  • ,
  • Patio/Terrace

DESCRIPTION

Tarpon Run captures the casual spirit of beach living both outside and in. Simple, but well detailed, the house merges indoor and outdoor living areas. Special features include a sleeping loft, outdoor fireplaces and spacious master bath set behind glass. The 3,334 square foot home is ideal for entertaining out-of-town guests, featuring five or six bedrooms and five and a half baths. Designed by accommodate two or three couples and their kids, this place raises the bar on waterfront living.

We called on Dungan Nequette Architects, Inc., of Birmingham, Alabama, for the design of our 2009 Idea House, located on Mustang Island, near Corpus Christi, Texas.
TALK to a SPECIALIST!
PLAN PRICING:
Downloadable PDF of full-size drawings.
Best for construction and customization.
Five full sets of construction drawings, copyright protected.
(Floor plans are reversed from plan as shown. All text and dimensions read backwards.)
Recommended for construction bids or pricing. Stamped "Not For Construction".
Purchase price can be applied toward an upgrade to the Construction or PDF Plan set for the same plan.
Downloadable letter-size PDF with floor plans, exterior elevations, and color photography (if available).
HOW TO PERSONALIZE YOUR PLAN:
  • 1
    SELECT your favorite plan.
  • 2
    SUBMIT your
    list of
    requirements.
  • 3
    CREATE a list of changes.
Get Started!