Toggle navigation
Search
My Account
Cart
Toggle navigation
EXPLORE
Plan Search
Plan Collections
Books + Magazines
Project Plans
Customize Plans
Find Pros
Custom Builder
Inspired Communities
Plan Search
Plan Collections
Books + Magazines
Project Plans
Customize Plans
FIND PROS
Custom Builder
Inspired Communities
About
Contact
My Account
Cart
888-846-5131
FIND A HOUSE PLAN
Architect / Designer
Allison Ramsey Architects, Inc.
Andy McDonald Design Group
Barn Owl Designs
Barry Moore
B&D Studio, LLC
Beau Clowney Architects
Benjamin Showalter
Ben Patterson, AIA
Bill Ingram, Architect
Bob Timberlake, Inc.
Bridgewater Consulting LLC
Brown Design Studio, LLC
Building Science Associates
C3 Studio, LLC
Caldwell/Cline Architects
C. Brandon Ingram Design
Charles Paul Goebel Architect
CHK Architects
Christ Associates
Chuck Dietsche
Clay Adams
CMA Architects
Cooper Johnson Smith Architects, Inc.
Cooper Robertson & Partners
Cornerstone Group Architects
Countryside Homes
Court Atkins Group
Cowart Group
Croft & Associates
Crowe Design and Associates, LLC
David Ranglack
David Sheley
David Smelcer
David Sulivan
David Wagner
Debbie L. Simmons, Inc.
Dennis Wedlick
Design Discoveries II
Design for Country Living
Devlin Architecture
Domain Designs
Donald A. Gardner, Architects, Inc.
Duany Plater-Zyberk & Co.
Dungan-Nequette Architects
Durham Crout Architecture, LLC
DWELL ING Architecture
Eduardo Contreras
Eskew+Dumez+Ripple Architects
Folck West & Savage Architects
Frank Betz Associates, Inc.
Frank G. Greene, AIA
Frank McCall
Frank Welch and Associates, Inc.
Frusterio Design Group, Inc.
Garrell Associates, Inc.
Gary Justiss
Gary/Ragsdale, Inc.
Geoff Chick and Associates, Inc
Geoffrey Mouen Architects, Inc.
Geoffrey Prentiss
George Graves, AIA
George Isreal
G. John Baxter
Grace Street Residential Design Systems
Group 3 Design
Hearthstone Homes
Historical Concepts, LLC
Home Plans LLC
Homes of Elegance
House and a Half
Hoyte Johnson, AIA
Indoor Outdoor Living
Insite Architecture, Inc.
Jack Herr Design Associates, Inc.
Jason Edward Bigelow
J. Cardy
J. Dean Winesett
Jim Pfaffman
Jim Williams
JKH Architects
J.M. Gunn & Co., Inc.
John Bohlke
John Henry, Inc.
Johnston Design Group
John Tee, Architect
Jonathan Miller Architect
Jon Condoret
Jova, Daniels & Busby
Just Right for Country
J. Wright Home Design
K2 Urban Design
Keith Covington, AIA
Ken Pieper and Associates LLC
Ken Tate Architect
Kurk Homes
Lake and Land Studio, LLC
Larry Garnett & Associates
Larry James Designs
Lew Oliver, Inc.
LifeStage Home Designs, Inc.
LiveWell Home Design
Looney, Ricks, Kiss Architects
Marty Schulken
McKay, Zorn & Associates, P.A.
Melanie Taylor
Mike Funderburk
Mitchell Barnett Architect P.C.
Mitchell Ginn
Moser Design Group
Mouzon Design
Naumann Group Real Estate Inc.
New Home Solutions
New South Classics, LLC
Our Town Plans, LLC
P. Allen Smith & Associates
Paragon Design Group
Philip Franks
Pursley Dixon Architects
R. Calvin Clendaniel Associates
RLE Designs, LLC
R.N. Black Associates, LLC
Rob Carlton Architecture
Robert Orr and Associates
Ron Haase
Ron Ward
Rosney Co. Architects
RPGA
Ryan Gainey & Company
Sailer Design, LLC
SALA Architects
Sanders Architecture, PLLC
Scotty Hood
Scott Ziegler
Seacoast Cottage Company
Simply Elegant Home Designs
Skip Tuminello
Southern Avenues
Spitzmiller and Norris, Inc.
Stephen Davis Home Designs
Stephen Fuller, Inc.
St. Joe Land Company
Sullivan Design Company
Summerour and Associates Architects, Inc.
T. Douglas Enoch
The Cottage Group, LLC
The Evans Group
The Village Studio
The Vogt Group
Tim Brown Architecture, LLC
Tim Holmes
Timothy Bryan, LLC
TMC Architecture, Inc.
Todd Architects, Inc.
Todd Wilson
Tribus Architecture
Village Building and Design LLC
WaterMark Coastal Homes, LLC
Watson Rutland
Whitten & Winkelman, Architects
William Clark
William H. Phillips
William Moore
William T. Baker
Wiregrass Studio, Inc.
Wm. Brian Jernigan, Inc.
Workshops Seven, LLC
Zachary Henderson
Bedrooms
1
2
3
4+
Bathrooms
1
2
3
4+
Stories
1
2
3+
0 ft
2
Square Feet
10000 ft
2
Plan Name or Number
Reset
Search
Yellow Jacket Creek
Plan SL-1757
Previous
Next
SL-1757
|
Share
Plan Details
BASICS
Bedrooms:
5
Baths:
4 full
Floors:
2
Garage:
0
Foundations:
Walkout Basement
Primary Bedroom:
Main Floor
Laundry Location:
Main Floor
Fireplaces:
1
SQUARE FOOTAGE
Main Floor:
1,580
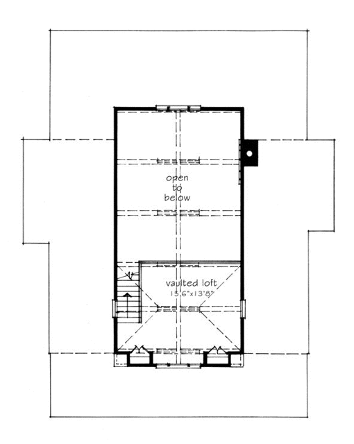
Upper Floor:
275
Lower Level:
1,188
Total Heated Sq Ft:
3,043
DIMENSIONS
Width x Depth:
48'0" x 60'0"
Height:
25'0"
PLATE HEIGHTS
Main Floor:
9.0'
Upper Floor:
5.0'
CONSTRUCTION
Ext. Wall Construction:
2x4
Roof Framing:
Rafter
STYLE / INFLUENCES
Cottage
,
Cabin
KITCHEN FEATURES
Snack
,
U-shaped
PRIMARY BEDROOM FEATURES
Dual Sinks
,
Porch
,
Shower
,
Tub
,
Walk-in Closet
ADDITIONAL FEATURES
Fireplace
,
Patio
,
Porch
,
Wet Bar
DESCRIPTION
TALK to a SPECIALIST!
or
(888) 846-5131
PLAN PRICING:
Select a Plan Package
PDF Plan Set
Downloadable PDF of full-size drawings.
Best for construction and customization.
0
1
2
3
4
5
6
7
8
9
10
Additional sets
Construction Set - 5 Sets
Five full sets of construction drawings, copyright protected.
0
1
2
3
4
5
6
7
8
9
10
Additional sets
0
1
2
3
4
5
6
7
8
9
10
11
12
13
14
15
16
17
18
Mirrored (reverse print) sets
(Floor plans are reversed from plan as shown. All text and dimensions read backwards.)
Pricing Set - 1 Set
Recommended for construction bids or pricing. Stamped "Not For Construction".
Purchase price can be applied toward an upgrade to the Construction or PDF Plan set for the same plan.
Study Plan
Downloadable letter-size PDF with floor plans, exterior elevations, and color photography (if available).
Select a Foundation
Walkout Basement
Additional Options
I Agree,
Terms & Conditions
Click here to agree to the terms and conditions to buy this plan.
Add to Cart
HOW TO PERSONALIZE YOUR PLAN:
1
SELECT
your favorite plan.
2
SUBMIT
your
list of
requirements.
3
CREATE
a list of changes.
Get Started!
OTHER PLANS BY Mitchell Ginn
Previous
Next
Additional Products You May Like
2019 House Plans Magazine
Small Homes Collection - Volume 2 (PDF)
Modern Farmhouse Collection (PDF)
Creating the New Southern Home (PDF)
2020 Farmhouse Style: Our Best House Plans & Design Ideas
Previous
Next