Ol' Man Ginn's BarnPlan SL-1997

SL-1997

Plan Details

BASICS

  • 0 full
  • 2
  • Slab

SQUARE FOOTAGE

  • 468
  • 402
  • 870
  • 288

DIMENSIONS

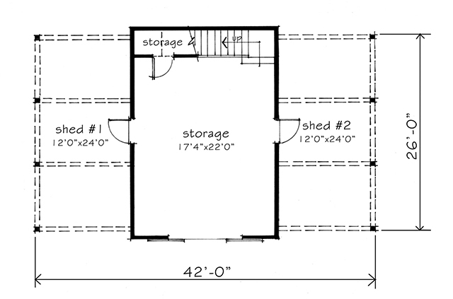
  • 42'0" x 26'0"
  • 25'0"

PLATE HEIGHTS

    CONSTRUCTION

    • 2x4
    • Stick

    STYLE / INFLUENCES

    • Garage

    KITCHEN FEATURES

    • n/a

    PRIMARY BEDROOM FEATURES

    • n/a

    ADDITIONAL FEATURES

    • Loft

    DESCRIPTION

    Think of Old Man Ginn’s Barn as the perfect outdoor pottery or music studio, craft space, or place to relax. With ample space for storage, and a vast upstairs loft, this feels far larger than its 870 square feet, while the covered sheds make outdoor lounging inviting.

    Photography by Mitch Ginn
    TALK to a SPECIALIST!
    PLAN PRICING:
    Downloadable PDF of full-size drawings.
    Best for construction and customization.
    Five full sets of construction drawings, copyright protected.
    (Floor plans are reversed from plan as shown. All text and dimensions read backwards.)
    HOW TO PERSONALIZE YOUR PLAN:
    • 1
      SELECT your favorite plan.
    • 2
      SUBMIT your
      list of
      requirements.
    • 3
      CREATE a list of changes.
    Get Started!