Summertime BungalowPlan SL-2012
SL-2012
Plan Details
BASICS
- 3
- 3 full, 1 half
- 2
- A3
- Crawlspace, Walkout Basement
- Main Floor
- Main Floor
- 2
SQUARE FOOTAGE
- 2,375
- 742
- 3,117
- 807
DIMENSIONS
- 69'9" x 67'3"
- 31'0"
PLATE HEIGHTS
- 10.0'
- 8.8'
CONSTRUCTION
- 2x4
- Stick
STYLE / INFLUENCES
- Southern ,
- Cottage
KITCHEN FEATURES
- Island ,
- Snack ,
- Pantry ,
- Open Layout ,
- Butler's Pantry
PRIMARY BEDROOM FEATURES
- Dual Sinks ,
- Porch ,
- Private Toilet ,
- Shower ,
- Tub ,
- Walk-in Closet
ADDITIONAL FEATURES
- Fireplace ,
- Porch ,
- Summer Kitchen
DESCRIPTION
With two generous porches, this three bedroom, three and a half bath design has great entertaining possibilities! The large front porch is covered and includes a spot for a swinging bed, and a screened porch in the rear of the home adds nearly 600 square feet of additional outdoor living space.
Inside, the spacious open concept kitchen boasts an expansive island and a butler’s pantry walk-through to the dining room. A study and convenient storage area off the foyer add to the functionality of this beautiful home.
A friend’s entry leads to the laundry area, mud bench, and powder room, and serves as a separate entry to the kitchen and pantry area.
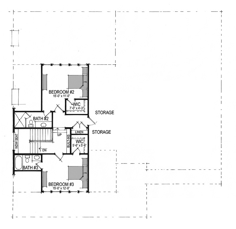
The main floor owner's suite boasts dual sinks, a tub and shower, and large his and hers closets. The second floor contains two bedrooms, each with their own full bathroom and walk in closet, as well as easy access to an expansive walk in storage area.
The Summertime Bungalow plan series offers a variety of options such as an additional guest suite, bonus room, exercise room and apartment. Also, these options can be combined to meet owner's specific needs.
TALK to a SPECIALIST!
PLAN PRICING:
HOW TO PERSONALIZE YOUR PLAN:
- 1SELECT your favorite plan.
- 2SUBMIT yourlist ofrequirements.
- 3CREATE a list of changes.





















































