Old Mill Farmhouse B + Bonus RoomPlan SL-2050-B

SL-2050-B

Plan Details

BASICS

  • 3
  • 3 full, 2 half
  • 2
  • A2
  • Crawlspace, Walkout Basement
  • Main Floor
  • Main Floor
  • 2

SQUARE FOOTAGE

  • 2,544
  • 1,523
  • 4,067
  • 689
  • 282

DIMENSIONS

  • 69'6" x 64'10"
  • 30'6"

PLATE HEIGHTS

  • 11.0'
  • 9.0'

CONSTRUCTION

  • 2x4
  • Stick

STYLE / INFLUENCES

  • Southern
  • ,
  • Farmhouse

KITCHEN FEATURES

  • Island
  • ,
  • Snack
  • ,
  • Pantry
  • ,
  • Open Layout

PRIMARY BEDROOM FEATURES

  • Porch
  • ,
  • Dual Sinks
  • ,
  • Private Toilet
  • ,
  • Shower
  • ,
  • Tub
  • ,
  • Walk-in Closet

ADDITIONAL FEATURES

  • Fireplace
  • ,
  • Porch
  • ,
  • Patio
  • ,
  • Bonus Room

DESCRIPTION

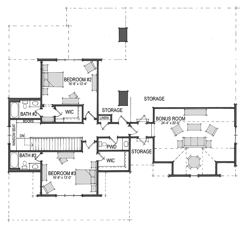
The first level of the Old Mill stays the same as the base plan in this option, but the upstairs expands to include a bonus room and additional half bath. A 480 square foot bonus room added over the garage becomes a spacious teen hangout, playroom, or theater room. Ample walk in storage areas are still accessible from the upstairs hallway. This modification makes this design a three bedroom, three and two half bathroom plan.
TALK to a SPECIALIST!
PLAN PRICING:
Downloadable PDF of full-size drawings.
Best for construction and customization.
Five full sets of construction drawings, copyright protected.
(Floor plans are reversed from plan as shown. All text and dimensions read backwards.)
Recommended for construction bids or pricing. Stamped "Not For Construction".
Purchase price can be applied toward an upgrade to the Construction or PDF Plan set for the same plan.
HOW TO PERSONALIZE YOUR PLAN:
  • 1
    SELECT your favorite plan.
  • 2
    SUBMIT your
    list of
    requirements.
  • 3
    CREATE a list of changes.
Get Started!

Additional Products You May Like