Nautical Cottage AlternatePlan SL-235

SL-235

Plan Details

BASICS

  • 3
  • 2 full
  • 2
  • 0
  • Crawlspace, Slab
  • Upper Floor
  • Main Floor
  • 1

SQUARE FOOTAGE

  • 1,053
  • 447
  • 1,500

DIMENSIONS

  • 43'0" x 51'0"
  • 27'0"

PLATE HEIGHTS

  • 10.0'
  • 0.0'

CONSTRUCTION

  • 2x6
  • Gable

STYLE / INFLUENCES

  • Country
  • ,
  • Southern
  • ,
  • Shingle
  • ,
  • Farmhouse
  • ,
  • Cracker

KITCHEN FEATURES

  • Eat-in

PRIMARY BEDROOM FEATURES

  • Walk-in Closet
  • ,
  • Dual Sinks
  • ,
  • Tub

ADDITIONAL FEATURES

  • Porch
  • ,
  • Fireplace

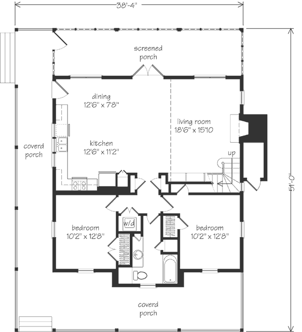
DESCRIPTION

You will want to settle in by the lake or feel the sea breeze in the Nautical Cottage Alternate. A combined kitchen and dining room, opening off a screened porch, is perfect for indoor or outdoor entertaining. Upstairs, the primary bedroom is a quiet and private retreat.
TALK to a SPECIALIST!
PLAN PRICING:
Downloadable PDF of full-size drawings.
Best for construction and customization.
Five full sets of construction drawings, copyright protected.
(Floor plans are reversed from plan as shown. All text and dimensions read backwards.)
Recommended for construction bids or pricing. Stamped "Not For Construction".
Purchase price can be applied toward an upgrade to the Construction or PDF Plan set for the same plan.
HOW TO PERSONALIZE YOUR PLAN:
  • 1
    SELECT your favorite plan.
  • 2
    SUBMIT your
    list of
    requirements.
  • 3
    CREATE a list of changes.
Get Started!