Hampton Bay RetreatPlan SL-239

SL-239

Plan Details

BASICS

  • 3
  • 3 full
  • 2
  • Crawlspace
  • Main Floor
  • Main Floor
  • 1

SQUARE FOOTAGE

  • 1,270
  • 990
  • 2,260

DIMENSIONS

  • 60'0" x 37'0"
  • 31'0"

PLATE HEIGHTS

  • 9.0'
  • 7.0'

CONSTRUCTION

  • 2x4
  • Gable

STYLE / INFLUENCES

  • Country
  • ,
  • Shingle
  • ,
  • Farmhouse

KITCHEN FEATURES

  • Island

PRIMARY BEDROOM FEATURES

  • Walk-in Closet
  • ,
  • Porch
  • ,
  • Dual Sinks
  • ,
  • Shower

ADDITIONAL FEATURES

  • Porch
  • ,
  • Fireplace

DESCRIPTION

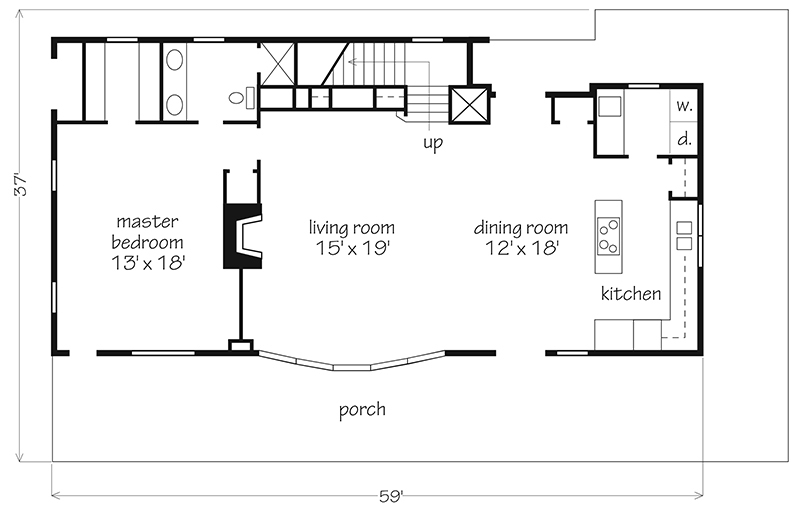
A nautical presence is evident with our Hampton Bay Retreat. Its shingle siding and wide wraparound porch are inspired by homes familiar to the New England seaboard.

Scott Ziegler of Houston designed the house for views that are provided by the numerous windows. The welcoming light fills the open living spaces. Kitchen aromas will filter to anyone relaxing by the fire, and the 24-foot ceiling takes them to the second level as well.

The master bedroom completes one side of the first floor, with a comfortable bath and private access to the porch. Two bedrooms are located upstairs. And to graciously accommodate visitors, each has a private bath. A loft overlooks the living area below and serves as a connector between the rooms.
TALK to a SPECIALIST!
PLAN PRICING:
Downloadable PDF of full-size drawings.
Best for construction and customization.
Five full sets of construction drawings, copyright protected.
(Floor plans are reversed from plan as shown. All text and dimensions read backwards.)
Recommended for construction bids or pricing. Stamped "Not For Construction".
Purchase price can be applied toward an upgrade to the Construction or PDF Plan set for the same plan.
HOW TO PERSONALIZE YOUR PLAN:
  • 1
    SELECT your favorite plan.
  • 2
    SUBMIT your
    list of
    requirements.
  • 3
    CREATE a list of changes.
Get Started!