Jackson SpringsPlan SL-269

SL-269

Plan Details

BASICS

  • 4
  • 3 full
  • 2
  • A2
  • Crawlspace, Walkout Basement, Slab
  • Upper Floor
  • Upper Floor
  • 1

SQUARE FOOTAGE

  • 1,289
  • 1,069
  • 2,358
  • 403

DIMENSIONS

  • 55'0" x 41'0"
  • 0'0"

PLATE HEIGHTS

  • 9.0'
  • 8.0'

CONSTRUCTION

  • 2x4
  • Gable

STYLE / INFLUENCES

  • Country
  • ,
  • Southern

KITCHEN FEATURES

  • Snack
  • ,
  • Nook

PRIMARY BEDROOM FEATURES

  • Walk-in Closet
  • ,
  • Dual Sinks
  • ,
  • Shower
  • ,
  • Tub
  • ,
  • Private Toilet

ADDITIONAL FEATURES

  • Porch
  • ,
  • Fireplace

DESCRIPTION

This spacious two-story plan, Jackson Springs, offers character, tradition, and well-designed comfort for a family. Its gracious front porch signals a welcome.

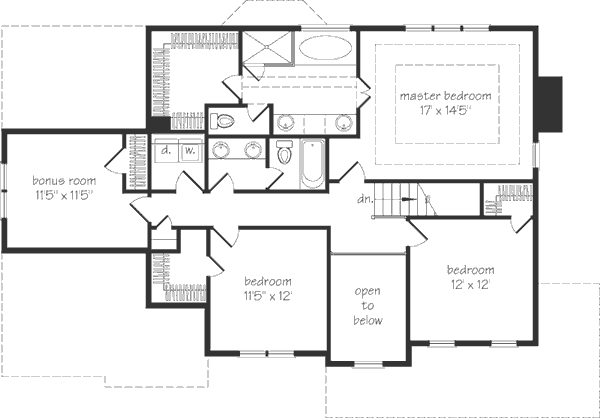
The first floor includes living and dining rooms on either side of the foyer. A family room features a cozy fireplace and easy access to the kitchen. The breakfast room doubles as a perfect spot for kids to do homework. Guests will enjoy the comfort and privacy of the first-floor bedroom with its own bath. Upstairs, the utility room is convenient to the spacious master and two additional bedrooms. Frank Betz Associates, Inc., included bonus space perfect for a home office or multipurpose room.

Full-reverse plans are available for an additional $250. Please call to place an order if you desire a full-reverse set of plans.
TALK to a SPECIALIST!
PLAN PRICING:
Electronic drawing files of the plan.
This, or a PDF Plan set, is required for customization.
Downloadable PDF of full-size drawings.
Best for construction and customization.
HOW TO PERSONALIZE YOUR PLAN:
  • 1
    SELECT your favorite plan.
  • 2
    SUBMIT your
    list of
    requirements.
  • 3
    CREATE a list of changes.
Get Started!