MorningsidePlan SL-270

SL-270

Plan Details

BASICS

  • 4
  • 3 full, 1 half
  • 2
  • A2
  • Crawlspace, Walkout Basement, Slab
  • Main Floor
  • Main Floor
  • 1

SQUARE FOOTAGE

  • 2,074
  • 896
  • 2,970
  • 0

DIMENSIONS

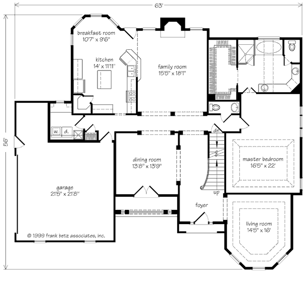
  • 63'0" x 56'0"
  • 32'0"

PLATE HEIGHTS

  • 0.0'
  • 0.0'

CONSTRUCTION

  • 2x4
  • Gable

STYLE / INFLUENCES

  • European
  • ,
  • Country

KITCHEN FEATURES

  • Nook
  • ,
  • Island

PRIMARY BEDROOM FEATURES

  • Walk-in Closet
  • ,
  • Dual Sinks
  • ,
  • Shower
  • ,
  • Sitting Area
  • ,
  • Tub
  • ,
  • Private Toilet

ADDITIONAL FEATURES

  • Porch
  • ,
  • Fireplace

DESCRIPTION

Homes with character are always welcome in a neighborhood. Our Morningside is a beautiful example of new design with traditional details. Its appeal is timeless.

Guests stepping into the two-story foyer immediately sense the spaciousness of the house. Architectural features include arched openings and columns framing the dining and family rooms. A bay with large windows brings light into the living room.

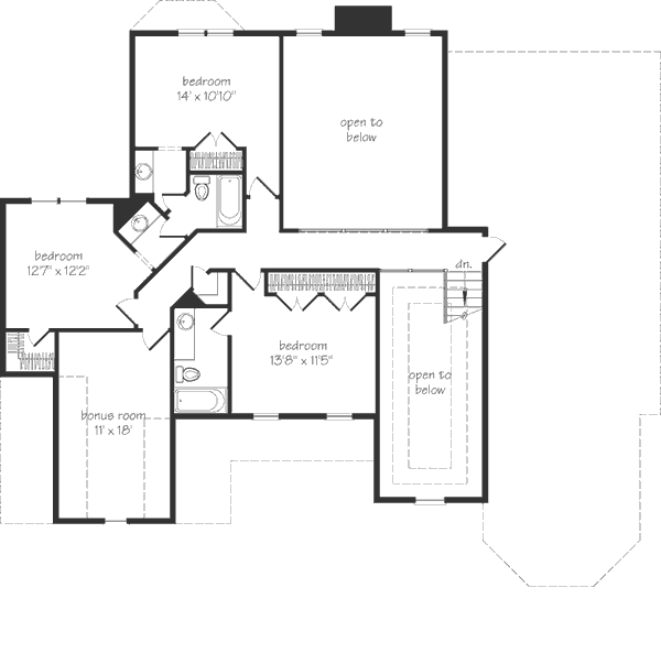
The family room, kitchen, and breakfast room are grouped together for convenience. The family room's vaulted ceiling accentuates the open feeling. A spacious master bedroom is on the first floor, and three additional bedrooms and two baths are upstairs. The design includes a bonus space, perfect for use as a playroom or home office.

Full-reverse plans are available for an additional $250. Please call to place an order if you desire a full-reverse set of plans.
TALK to a SPECIALIST!
PLAN PRICING:
Electronic drawing files of the plan.
This, or a PDF Plan set, is required for customization.
Downloadable PDF of full-size drawings.
Best for construction and customization.
HOW TO PERSONALIZE YOUR PLAN:
  • 1
    SELECT your favorite plan.
  • 2
    SUBMIT your
    list of
    requirements.
  • 3
    CREATE a list of changes.
Get Started!