Sheridan SpringsPlan SL-275

SL-275

Plan Details

BASICS

  • 4
  • 4 full, 1 half
  • 2
  • A3
  • Crawlspace, Slab, Walkout Basement
  • Upper Floor
  • Upper Floor
  • 2

SQUARE FOOTAGE

  • 1,583
  • 1,632
  • 3,215
  • 641

DIMENSIONS

  • 59'0" x 50'0"
  • 35'0"

PLATE HEIGHTS

  • 9.0'
  • 8.0'

CONSTRUCTION

  • 2x4
  • Hip

STYLE / INFLUENCES

  • European

KITCHEN FEATURES

  • Nook
  • ,
  • Island

PRIMARY BEDROOM FEATURES

  • Double Doors
  • ,
  • Walk-in Closet
  • ,
  • Dual Sinks
  • ,
  • Shower
  • ,
  • Sitting Area
  • ,
  • Tub
  • ,
  • Fireplace
  • ,
  • Private Toilet

ADDITIONAL FEATURES

  • Fireplace
  • ,
  • 2 Stairs to Upper

DESCRIPTION

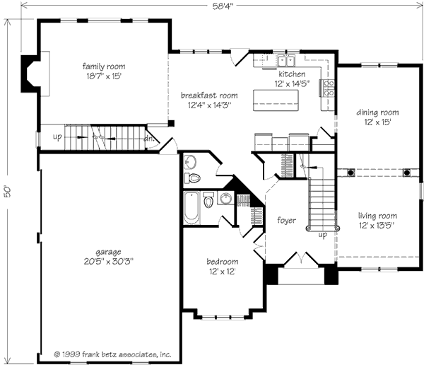
The facade of Sheridan Springs blends a mix of materials, elegantly containing the well-designed floor plan. From the foyer the plan flows easily throughout the first floor. To the right, the living and dining rooms share an open, inviting space, divided only by columns. From the dining room, you step into the functional and spacious kitchen and breakfast room. A cozy family room with a fireplace is tucked away in the rear. Its relationship to the kitchen makes this whole section of the house perfect for group activity. A bedroom with full bath is off the foyer. Its privacy creates a guestroom or study.

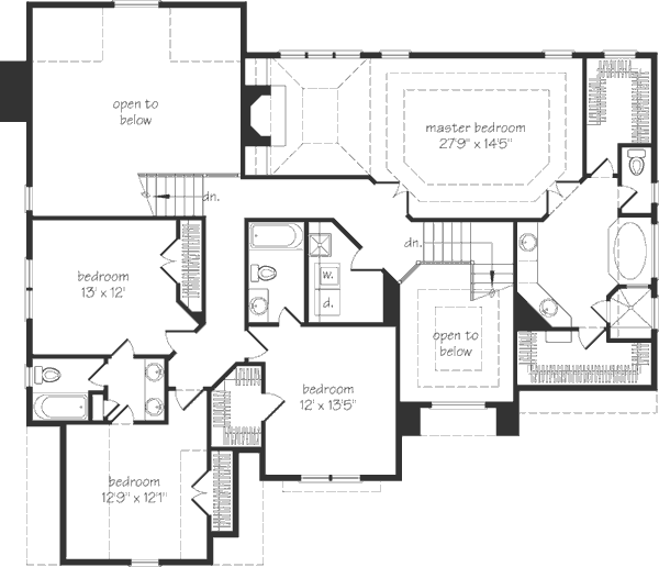
Upstairs, accessed by the main staircase or hidden stairs located in the family room, are four bedrooms. A large master features a sitting area with fireplace. Two additional bedrooms share a bath, and a third has its own.

Frank Betz Associates, Inc., of Smyrna, Georgia, also included an upstairs utility room, convenient to the bedrooms.

Full-reverse plans are available for an additional $250. Please call to place an order if you desire a full-reverse set of plans.
TALK to a SPECIALIST!
PLAN PRICING:
Electronic drawing files of the plan.
This, or a PDF Plan set, is required for customization.
Downloadable PDF of full-size drawings.
Best for construction and customization.
HOW TO PERSONALIZE YOUR PLAN:
  • 1
    SELECT your favorite plan.
  • 2
    SUBMIT your
    list of
    requirements.
  • 3
    CREATE a list of changes.
Get Started!