IdlewildPlan SL-278

SL-278

Plan Details

BASICS

  • 3
  • 2 full, 1 half
  • 1
  • A2
  • Crawlspace, Walkout Basement, Slab
  • Main Floor
  • Main Floor
  • 1

SQUARE FOOTAGE

  • 1,893
  • 1,893
  • 0

DIMENSIONS

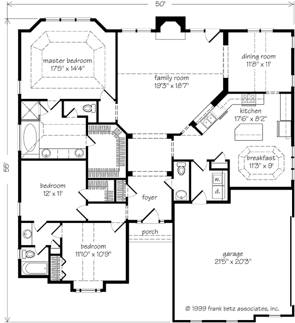
  • 50'0" x 55'0"
  • 28'0"

PLATE HEIGHTS

  • 0.0'

CONSTRUCTION

  • 2x4
  • Hip

STYLE / INFLUENCES

  • European

KITCHEN FEATURES

  • Snack
  • ,
  • Island

PRIMARY BEDROOM FEATURES

  • Walk-in Closet
  • ,
  • Dual Sinks
  • ,
  • Shower
  • ,
  • Tub
  • ,
  • Private Toilet

ADDITIONAL FEATURES

  • Fireplace

DESCRIPTION

A compact floor plan filled with architectural details makes Idlewild special. Brick and clapboard siding lend exterior appeal. Multipaned windows, an arched entry, and a dormer add to the thoughtful design.

Inside, arched doorways, decorative columns, and vaulted ceilings provide an open, distinctive setting. The foyer's 16-foot ceiling sets the stage for light-filled rooms. Two bedrooms and a shared bath are to the left of the foyer, accommodating guests or children. A vaulted ceiling and bay window make the master bedroom comfortable and spacious. Its full bath and generous closet space add luxurious touches. The family room serves as the home's focal point. The dining room and kitchen team up as the final ingredients to a home designed for casual living.

Full-reverse plans are available for an additional $250. Please call to place an order if you desire a full-reverse set of plans.
TALK to a SPECIALIST!
PLAN PRICING:
Electronic drawing files of the plan.
This, or a PDF Plan set, is required for customization.
Downloadable PDF of full-size drawings.
Best for construction and customization.
HOW TO PERSONALIZE YOUR PLAN:
  • 1
    SELECT your favorite plan.
  • 2
    SUBMIT your
    list of
    requirements.
  • 3
    CREATE a list of changes.
Get Started!